Biệt thự phố 3 tầng 353m2

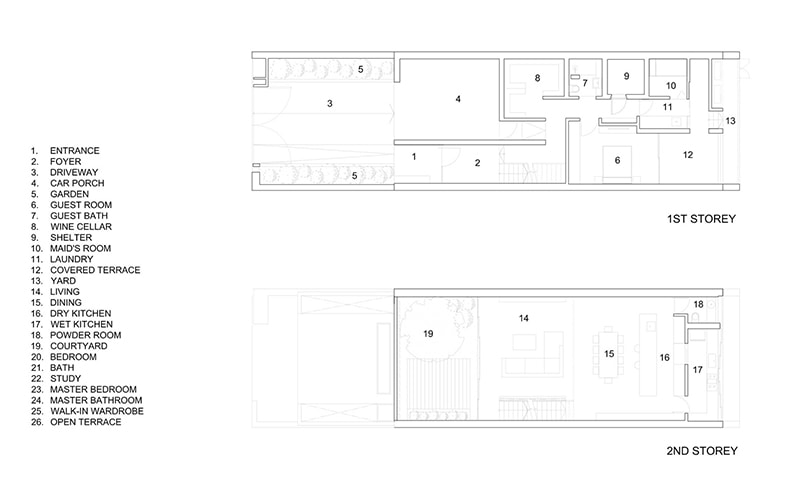
Mẫu biệt thự phố 3 tầng 353m2 được thiết kế một tầng phụ, tận dụng khu vực trệt làm bãi đỗ xe và hầm rượu. Với phong cách hiện đại, ngôi nhà không giới hạn sự sáng tạo cả ngoại lẫn nội thất, mang đến một không gian sống đậm chất hiện đại với tính chất mở.

Mẫu biệt thự phố 3 tầng 353m2

Biet Thu Pho 3 Tang 353m2 (1)
Biệt thự phố 3 tầng 353m2
Mặt tiền mẫu biệt thự đẹp được bố trí một hệ lam bê tông giảm thiểu tác động từ ánh nắng đồng thời thông qua đó tạo nên hiệu ứng ánh sáng độc đáo cho không gian nội thất. Chi tiết cổng sử dụng gỗ nêu bật công trình kiến trúc biệt thự, thân thiện và hòa huyện cùng mảng sân vườn xanh mát. Biet Thu Pho 3 Tang 353m2 (23) Một phần diện tích tầng trệt được sử dụng làm bãi đỗ xe ô tô, ngay bên cạnh là lối cầu thang dẫn lên khu vực sinh hoạt chung gồm phòng khách và phòng bếp của gia đình. Biet Thu Pho 3 Tang 353m2 (22) Biet Thu Pho 3 Tang 353m2 (21) Chất mộc mạc xuyên suốt từ vẻ ngoài cho đến không gian nội thất mẫu biệt thự đẹp, gam màu ghi xám tạo nên những góc nhìn dịu mát đúng nghĩa một không gian nghỉ dưỡng. Biet Thu Pho 3 Tang 353m2 (20) Ban công tầng 2 có diện tích khá rộng được bố trí cây xanh cùng đá tự nhiên với khoảng trống ngay bên trên nhận nguồn sáng và gió dồi dào, mang đến sự thông thoáng hết sức tuyệt vời đến từng ngõ ngách bên trong ngôi nhà. Biet Thu Pho 3 Tang 353m2 (19) Biet Thu Pho 3 Tang 353m2 (18) Tường gạch và bê tông trần là xu hướng thiết kế được thế giới ưa chuộng từ lâu, tuy nhiên tại nước ta chỉ thấy xuất hiện ở một số ít công trình kiến trúc nhà ở của những gia đình trẻ, nắm bắt được sự chuyển động của nền kiến trúc hiện đại. Biet Thu Pho 3 Tang 353m2 (17) Đối với ngôi biệt thự phố 3 tầng 353m2 này bạn sẽ không thấy quá nhiều vật dụng hay đồ dùng nội thất được bày biện, đó là kết quả của nguyên tắc thiết kế tối giản đề cao sự tinh tế trong không gian nội thất, vẻ đẹp không đến từ sự cầu kỳ mà đôi khi sự đơn giản lại có sức lôi cuốn bất ngờ. Biet Thu Pho 3 Tang 353m2 (16) Cảm giác bình dị và gần gũi là dấu ấn đặc trưng của phong cách mộc trong thiết kế kiến trúc. Biet Thu Pho 3 Tang 353m2 (15) Hiệu ứng cánh sáng được triển khai khéo léo ngay từ những chi tiết nhỏ như những bậc cầu thang. Biet Thu Pho 3 Tang 353m2 (14) Biet Thu Pho 3 Tang 353m2 (13) Biet Thu Pho 3 Tang 353m2 (12) Tính mở và xanh của công trình được phát huy tối đa với những góc ban công thông thoáng. Biet Thu Pho 3 Tang 353m2 (11) Phòng vệ sinh khép kín dường như là đặc trưng của những công trình nhà phố thông thường, riêng tại mẫu biệt thự phố 3 tầng 353m2 phòng vệ sinh lại là một chốn riêng tư lôi cuốn với hiệu ứng ánh sáng len lỏi qua các khe hẹp của gỗ và cây xanh, không khí lưu thông liên tục sẽ giải quyết vấn đề ám mùi triệt để. Biet Thu Pho 3 Tang 353m2 (10) Biet Thu Pho 3 Tang 353m2 (9) Biet Thu Pho 3 Tang 353m2 (8) Hệ thống lam bê tông ngoài chức năng che chắn giảm thiểu ảnh hưởng trực tiếp từ môi trường đến không gian sống còn là thủ pháp tạo vẻ đẹp mờ ảo cho mặt tiền ngôi nhà, bồi đắp sự tò mò về cho khối kiến trúc phía sau bức tường rào. Biet Thu Pho 3 Tang 353m2 (7) Biet Thu Pho 3 Tang 353m2 (6) Hệ thống đèn chiếu sáng của kiến trúc nhà đẹp tạo nên hiệu ứng huyền ảo cho không gian nội thất, đảm bảo cung cấp đầy đủ nguồn sáng cho sinh hoạt bên cạnh khả năng bổ sung tính thẩm mỹ ấn tượng.   Biet Thu Pho 3 Tang 353m2 (3) Biet Thu Pho 3 Tang 353m2 (4) Biet Thu Pho 3 Tang 353m2 (5) Biet Thu Pho 3 Tang 353m2 (2) Sở hữu một  ngôi biệt thự phố hiện đại và tinh tế theo xu hướng chuyển động của nền kiến trúc thế giới trở nên đơn giản khi có Kiến trúc Bộ Ba hỗ trợ tư vấn. Mọi chi tiết xin mời liên hệ hotline 0911.64.11.77 hoặc gửi thông tin hỗ trợ tại đây.

Leave a Reply

Your email address will not be published. Required fields are marked *