Mẫu biệt thự phố 3 tầng 8x20m hiện đại và mộc

Kiến trúc Bộ Ba xin giới thiệu mẫu biệt thự phố 3 tầng 8x20m mang phong cách Hiện đại – Mộc trên diện tích xây dựng 350m2 với sự kết hợp kiến trúc hiện đại trên tinh thần lưu giữ văn hóa bản xứ một mô hình biệt thự nghỉ dưỡng nhưng vẫn mang nét ấm cúng, mộc mạc của gia đình. TƯƠNG PHẢN TRONG SỰ ĐỒNG NHẤT Một không gian sống đẹp cần hội đủ các yếu tố về nhu cầu, thổ nhưỡng lẫn thẩm mỹ. Không những vậy, một ngôi nhà đẹp còn phải tạo được sự hài hòa về mặt khách quan lẫn chủ quan.
Mau Biet Thu 3 Tang 8x20 (1)
Mẫu biệt thự phố 3 tầng 8x20m phong cách Hiện đại – Mộc
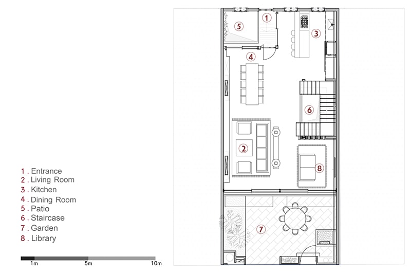
Mẫu biệt thự phố có kiến trúc điển hình với hai mặt tiền ở phía bắc và phía nam. Khu vườn bên ngoài phía nam là phần mở rộng và nối dài của không gian phòng khách được ngăn cách bởi hàng hiên lót gỗ và cửa kính. Mặt ngang phía bắc được thiết kế thành tiền sảnh ngoài trời giữa ngôi nhà và đường phố. Phần sân trở thành khu vực hứng nắng tốt và trở thành nguồn sáng xuyên qua cửa kính đi vào nhà, phục vụ cho các sinh hoạt ban ngày, giúp tiết kiệm điện hiệu quả.
Mau Biet Thu 3 Tang 8x20 (19)
Đây là một góc mặt tiền phía nam nối dài với phần mở rộng của phòng khách
Tầng trệt của biệt thự phố được kết cấu theo không gian mở kết nối hầu hết các hoạt động chung của các thành viên với các khu chức năng cơ bản: phòng khách, góc đọc sách, khu ăn uống và nhà bếp. Mục đích của việc thiết kế này nhằm phá bỏ ranh giới, nới rộng diện tích và tạo chiều sâu cho khoảng tầng trệt. Chiều cao của kính ở tầng trệt là một phân vùng tạo góc nhìn linh hoạt vô hạn xuyên suốt không gian nhà.
Mau Biet Thu 3 Tang 8x20 (18)
Giới hạn nào cho khoảng không gian rộng mởi khi hai bên được xuyên thấu qua cửa kính và sắc độ đồng nhất giữa màu gỗ và màu đá?!
Mau Biet Thu 3 Tang 8x20 (17)
Phòng khách tiện nghi với cách bày trí nội thất ngập tràn ánh nắng trong lành của ngày mới
Vật liệu chủ đạo của mẫu biệt thự phố là sự kết hợp chất hiện đại tinh xảo của kim loại từ khung thép, cửa ra vào đến những bậc thang cùng chất mộc của sàn gỗ, bàn ghế.
Mau Biet Thu 3 Tang 8x20 (7)
Mặt ngang của khu vực sinh hoạt chung trải ra suốt chiều dài căn biệt thự
Đồng thời, nội thất của mẫu biệt thự phố chịu ảnh hưởng mạnh mẽ phong cách của Pháp và Ý. Gam màu trung tính trắng – xám của ván sàn và tường làm nổi bật màu gỗ nâu đỏ của bàn ghế và những khung cửa ở mặt tiền phía bắc.
Mau Biet Thu 3 Tang 8x20 (14)
Nội thất của mẫu biệt thự phố tinh tế và sang trọng đến từng chi tiết hoa văn trên gối đến những vật phẩm giàu tính nghệ thuật được trưng bày trên kệ
Sự ấm áp và mềm mại của ghế sofa, nét tinh tế từ đá hoa cương của chiếc bàn nho nhỏ dùng để tiếp khách, chất thô ráp gồ ghề của mảng tường gạch không nung cách điệu tất cả tạo nên một bản thể đa sắc trong phong cách vừa hiện đại vừa mộc mạc.
Mau Biet Thu 3 Tang 8x20 (15)
Nhà bếp cách khu vực ăn uống một khoảng nhất định đảm bảo sự an toàn
Mau Biet Thu 3 Tang 8x20 (8)
Không gian bếp hướng ra vườn phía bắc nên thông thoáng, mát mẻ
Mau Biet Thu 3 Tang 8x20 (6)
Không gian như mở rộng hơn trên từng bậc thang kiên cố, khung thép rắn rỏi cùng mảng tường gạch không nung thô trần
Phần dưới của ngôi nhà là tầng hầm phục vụ cho chức năng thư giãn, giải trí với phòng âm nhạc được bố trí cạnh sân vườn.
Mau Biet Thu 3 Tang 8x20 (20)
Phòng âm nhạc/ thư giãn đẹp mê hoặc với bộ ghế trải dài khắp không gian hướng vườn tạo nên khung cảnh huyền bí lãng mạn
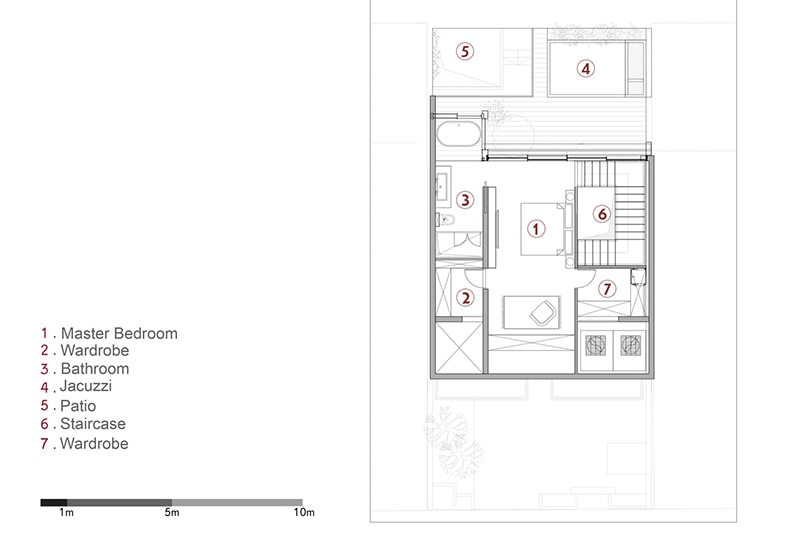
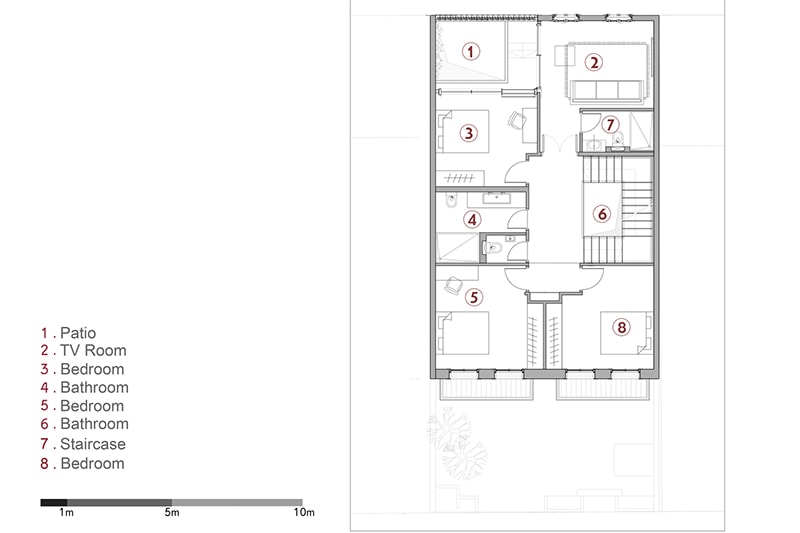
Các tầng trên bao gồm là khu vực sinh hoạt cá nhân với các phòng ngủ và nhà tắm. Trong những phòng này, sân hiên được thiết kế hướng ra khu vườn phía nam. Kế hoạch ban đầu của các kiến ​​trúc sư là tìm kiếm một ngôn ngữ kiến ​​trúc kết hợp các yếu tố Địa Trung Hải đương đại. Những yếu tố sân hiên và khu vườn được cấu trúc theo kiểu hiện đại.
Mau Biet Thu 3 Tang 8x20 (4)
Nhà tắm được mở rộng, có chiều sâu với nội thất tiện nghi, đơn giản và hài hòa trong nền trắng tinh khiết
Mau Biet Thu 3 Tang 8x20 (5)
Phòng ngủ với trần nhà ốp gỗ thoáng mát, rộng rãi; ít nội thất nên tạo cảm giác thoải mái
Ban Ve Mau Biet Thu 3 Tang 8x20 Ban Ve Mau Biet Thu 3 Tang 8x20 6 Ban Ve Mau Biet Thu 3 Tang 8x20 5 Ban Ve Mau Biet Thu 3 Tang 8x20 4 Ban Ve Mau Biet Thu 3 Tang 8x20 3 Ban Ve Mau Biet Thu 3 Tang 8x20 2 Mau Biet Thu 3 Tang 8x20 (2) Hãy ngắm nhìn và lắng nghe ngôn ngữ của khung thép, sàn gỗ để thưởng thức cái đẹp của câm lặng của vật liệu. Mẫu biệt thự phố 3 tầng mang phong cách Hiện đại – Mộc là một trong những xu thế kiến trúc dân dụng phổ biến hiện nay. Cùng Kiến trúc Bộ Ba tạo tác những đường nét sinh động cho cuộc sống của bạn. Mọi chi tiết cần được tư vấn về thiết kế và xây dựng, xin liên hệ: Công ty Cổ phần Thiết kế Xây dựng Bộ Ba Add: Số 5 Trương Công Định – P.14 – Q.Tân Bình – Tp.HCM Hotline: 0911.64.11.77 Website: https://kientrucboba.com/ Email: info.congtyboba@gmail.com

Những bài liên quan:

Leave a Reply

Your email address will not be published. Required fields are marked *