Mẫu biệt thự tân cổ điển 3 tầng 1 tum Quận 9 | Tp.HCM

Có phong cách thiết kế đẹp, đơn giản với tổng thể hình khối vừa vặn, sang trọng. Mẫu biệt thự tân cổ điển 3 tầng 1 tum chúng tôi giới thiệu trong bài viết sau sẽ đem đến cho bạn một trải nghiệm đầy cuốn hút với không gian sống tiện nghi, sang trọng. Với tone màu trắng trẻ trung, tươi mới đã giúp cho mẫu biệt thự trở nên độc đáo, mới lạ, đồng thời thể hiện cá tính riêng chủ gia chủ và đáp ứng được nhu cầu sinh hoạt của gia đình.

Phối cảnh mặt tiền mẫu biệt thự tân cổ điển 3 tầng 1 tum

Biệt thự tân cổ điển 3 tầng 1 tum
Biệt thự tân cổ điển 3 tầng 1 tum – Quận 9 _ Tp.HCM
Ngoại thất của căn biệt thự mang phong cách tân cổ điển, song bên cạnh đó KTS đã gia giảm nhiều yếu tố trang trí cầu kỳ nhằm tạo bên bố cục và màu sắc vừa phải, hợp mắt. Bạn dễ dàng nhận thấy rằng các hình khối, đường nét và các sắp đặt được bố trí một cách khéo léo tạo cho người nhìn cảm giác rộng rãi, bề thế của công trình. Biệt thự tân cổ điển 3 tầng 1 tum Tone màu trắng chủ đạo góp phần làm cho căn nhà trở nên nổi bật và mang hơi hướng trẻ trung hơn. Kết hợp với gam màu đen của mái nhà, đường viền và ban công thể hiện được sự tương phản ấn tượng. Cũng như giữ lại nét đặc trưng trong phong cách thiết kế tân cổ điển. Biệt thự tân cổ điển 3 tầng 1 tum Biệt thự tân cổ điển 3 tầng 1 tum Biệt thự tân cBiệt thự tân cổ điển 3 tầng 1 tumổ điển 3 tầng 1 tum

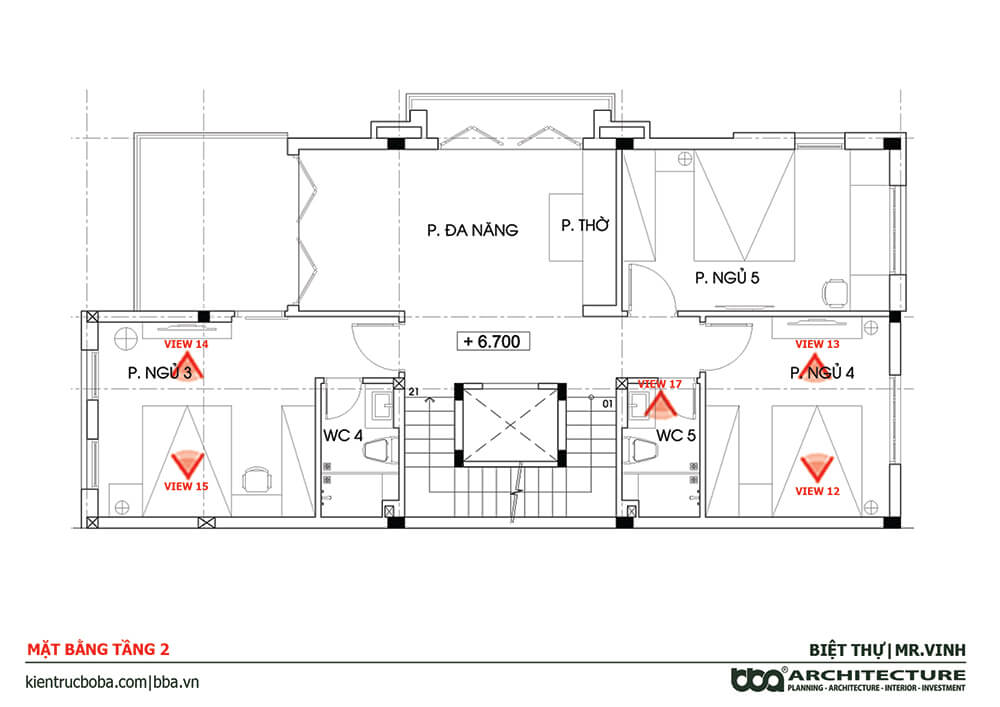
Bố trí mặt bằng công năng

Biệt thự tân cổ điển 3 tầng 1 tum Công năng sử dụng của tầng 1: Với bố trí phòng khách, bếp và phòng ăn, hai phòng ngủ chính và một phòng vệ sinh dùng chung trong một không gian rộng rãi. Ở đây, KTS đã vô cùng khéo léo trong việc phân chia các khu vực sinh hoạt chung và riêng của gia đình một cách hợp lý mà không làm mất đi sự thoải mái, riêng tư của người sử dụng. Biệt thự tân cổ điển 3 tầng 1 tum Công năng sử dụng của tầng 2: Bao gồm ba phòng ngủ rộng rãi, phòng thờ và một phòng đa năng. Phòng ngủ có bố trí vệ sinh riêng sẽ đảm bảo được sinh hoạt riêng tư cần thiết.

Nội thất mẫu biệt thự tân cổ điển 3 tầng 1 tum

Biệt thự tân cổ điển 3 tầng 1 tum Để bạn có thể hình dung rõ hơn về công năng sử dụng trong mẫu biệt thự 3 tầng 1 tum đẹp này. Bạn có thể tham khảo thêm hình ảnh nội thất, cũng như cách bố trí các vật dụng sinh hoạt hàng ngày. Không gian sinh hoạt được KTS thiết kế một cách linh hoạt, đem đến sự thoải mái và tiện dụng cho gia chủ. Nội thất được lựa chọn theo xu hướng cao cấp, song không quá cầu kỳ hay thiên về kiểu dáng mà tập trung vào việc đáp ứng đầy đủ nhu cầu sinh hoạt hằng ngày. Biệt thự tân cổ điển 3 tầng 1 tum Phong cách chủ đạo chính là sự tinh tế, cao cấp, sang trọng và thể hiện được cá tính riêng, cũng như khiếu thẩm mỹ của gia chủ. Biệt thự tân cổ điển 3 tầng 1 tum Việc tạo không gian mở với thiết kế liền kề giữa phòng khách, phòng ăn, bếp đã làm mất đi sự ngăn cách trong căn biệt thự. Điều này sẽ khiến cho tổng thể không gian có sự liên kết, linh hoạt và thoải mái hơn, tăng tính kết nối giữa các thành viên trong nhà. Gam màu trắng chủ đạo kết hợp nội thất gỗ không chỉ giúp cho thiết kế biệt thự trở nên ấm cúng, cao cấp hơn mà còn tốt cho sức khỏe của các thành viên trong nhà. Việc sử dụng các vật liệu tự nhiên góp phần tạo ra môi trường sống thân thiện, thoải mái. Ở đây, bạn có thể thấy các KTS đã rất ưu tiên trong việc lấy sáng cho các không gian nhà nhờ hệ thống cửa kính được bố trí khắp các khu vực sinh hoạt từ phòng khách, bếp cho đến các phòng ngủ. Ánh sáng tự nhiên sẽ mang lại nguồn sinh khí cho ngôi nhà, cũng như việc giúp cho căn biệt thự 3 tầng này luôn được lưu thông không khí một cách tốt nhất. Các phòng ngủ được thiết kế theo đúng như yêu cầu của từng người trong nhà. Mặc dù màu sắc được lựa chọn dựa trên sở thích, phong thủy để mang lại sự may mắn và vượng khí. Song vẫn dựa trên tổng thể chủ đề thiết kế của biệt thự. Do đó, bạn sẽ có cảm giác xuyên suốt qua các khu vực sinh hoạt, tạo cảm giác đồng bộ và sang trọng. Biệt thự tân cổ điển 3 tầng 1 tum Biệt thự tân cổ điển 3 tầng 1 tum Biệt thự tân cổ điển 3 tầng 1 tum Biệt thự tân cổ điển 3 tầng 1 tum Biệt thự tân cổ điển 3 tầng 1 tum Biệt thự tân cổ điển 3 tầng 1 tum Biệt thự tân cổ điển 3 tầng 1 tum Các yếu tố trang trí đi kèm cũng không quá cầu kỳ, mà tập trung vào công năng sử dụng, khiến cho ngôi nhà vừa cuốn hút, vừa có được sự tiện nghi cần thiết nhất. Điều này thể hiện qua những bố trí như kệ để đồ, rèm cửa, bàn trang điểm, ghế lười, đèn trang trí… Biệt thự tân cổ điển 3 tầng 1 tum Ngoài các khu vực sinh hoạt chung của gia đình được các KTS chăm chút kỹ lưỡng, thì khu vực nhà tắm, phòng vệ sinh cũng được gia chủ vô cùng chú tâm. Điều này thể hiện qua cách thiết kế, bố trí các món vật dụng thiết yếu và tone màu chủ đạo. Biệt thự tân cổ điển 3 tầng 1 tum Khu vực bồn rửa mặt được thiết kế với gương lắn được đặt rộng bằng phần bàn đá phía dưới, còn chiều cao thì nâng đến sát trần chung quanh gương được ốp đá trang trí, định hình gương. Bên cạnh đó, việc ốp đá màu tối kết hợp các vật dụng có tone màu trắng, tạo cảm giác sạch sẽ cho căn phòng.  Nội thất không gian phòng tắm và vệ sinh cũng như các gian phòng khác đều có thể linh hoạt thay đổi thiết kế dựa trên những ý tưởng mới. Điều quan trọng là thay đổi đó đáp ứng được nhu cầu thư giãn, tái tạo được năng lượng cho gia đình. Sau khi đã tham khảo qua bài viết cũng như hình ảnh chi tiết về mẫu biệt thự tân cổ điển 3 tầng 1 tum chúng tôi đã giới thiệu trong bài viết. Hy vọng và và gia đình sẽ tìm thấy ý tưởng phù hợp cho kế hoạch xây dựng không gian sống lý tưởng trong thời gian tới. >>> Xem thêm những dự án thiết kế biệt thự tân cổ điển do BBA thực hiện. Mọi thắc mắc và các thông tin cần tư vấn, bạn có thể liên hệ trực tiếp với các KTS của Bộ Ba để được giải đáp nhanh chóng nhất. Mọi nhu cầu xin mời liên hệ: CÔNG TY CỔ PHẦN THIẾT KẾ XÂY DỰNG BỘ BA – Địa chỉ: Số 5 Trương Công Định, P.14, Q.Tân Bình, Tp.HCM – Email: info.congtyboba@gmail.com – Điện thoại: 0283.811.9077 – Hotline: 0911.64.11.77 – Website: https://kientrucboba.com

Leave a Reply

Your email address will not be published. Required fields are marked *