Mẫu thiết kế biệt thự phố hiện đại 7x20m xanh mát thân thiện

Kiến trúc Bộ Ba xin giới thiệu mẫu thiết kế biệt thự phố hiện đại 7x20m: một không gian sống vừa đep vừa tiện nghi với bầu không khí xanh mát cho cuộc sống tròn vị. SỐNG TRỌN VẸN TRÊN TỪNG TẤC ĐẤT Không gian sống lý tưởng ở các đô thị sầm uất, đông đúc cần đáp ứng khoảng công năng tiện nghi, có thể không rộng nhưng phải thông thoáng để “dễ thở” trong bầu không kh ô nhiễm “đất chật người đông”. Bên cạnh đó, không gian sống đòi hỏi phải là nơi chốn đi về tạo được bình yên thư thái cũng như tái tạo năng lượng cho mỗi thành viên trong gia đình làm việc và học tập hiệu quả.
Mau Thiet Ke Biet Thu Pho 7x20m Hien Dai
Mẫu thiết kế biệt thự phố hiện đại 7x20m
Mặt ngoài của ngôi nhà phố tạo điểm nhấn từ màu sắc, vật liệu đến kiểu dáng. Biệt thự là những khối hợp chia tầng với nhiều góc cạnh phân cắt từ mái hiên mặt tiền đến mặt bên là những mảng tường che chắn với độ cao khác nhau. Căn nhà gồm có 2 tầng và một gác xép với nhiều công năng tiện ích. Mảng tường hoa gió từ mảng tường chính diện đến cửa cổng tạo nên sự đồng nhất thú vị. Cổng rào màu vàng với những lỗ vuông nổi bật trên nền tổng thể của biệt thự phố.
Mau Thiet Ke Biet Thu Pho 7x20m Hien Dai 2
Mặt tiền Biệt thự phố tạo điểm nhấn từ màu sắc đến chất liệu.
Mau Thiet Ke Biet Thu Pho 7x20m Hien Dai 3
Lối vào nhà với tường bê tông kết hợp gạch không nung và ván sàn tạo nên sự đồng nhất về sắc độ từ mặt tiền phía ngoài lẫn bên trong.
Nếu ngoại thất tạo sức hút từ kiểu dáng và màu sắc, nội thất nhà phố lại được điểm cộng với cách phân bổ không gian hợp lý tương ứng với các công năng kèm theo lối bày trí độc đáo.
Mau Thiet Ke Biet Thu Pho 7x20m Hien Dai 4
Không gian nhà khách đơn giản, ít bày biện tao sự thanh thoát, rộng rãi nhưng không làm mất đi sự sang trọng của biệt thự phố.
Tầng 1 của nhà phố trở thành không gian sinh hoạt chung với nhà khách, bếp và khu vực ăn uống. Cửa kính trong suốt kết hợp với hàng hiên tạo sự mát mẻ, tránh nắng tốt lại làm không gian thêm mở, phá bỏ khoảng cách giữa trong và ngoài. Phòng khách đơn giản với chiếc bàn gỗ dài đặt đối diện với chiếc tivi giữa nhà. Bên trên là giàn đèn được thiết kế theo lối hiện đại với khung sắt, bóng đèn dây tóc đung đưa theo phương thẳng đứng nhờ có dây gia cố. Phòng khách của nhà phố được trưng dụng trở thành khu ăn.
Mau Thiet Ke Biet Thu Pho 7x20m Hien Dai 5
Những rặng trúc phất phơ trước gió trong vườn sỏi hòa điệu cùng màu trắng xám thanh mộc, hiện đại của phòng khách.
  Bên hông phòng khách ở phía ngoài hành lang là hồ bơi hình chữ L ôm sát khuôn viên nội thất là nơi thư giãn, vận động rèn luyện sức khỏe cho các thành viên trong gia đình vào những buổi sớm hay những ngày cuối tuần. Nhà phố được xây dựng với nhiều mảng lộ thiên đem nắng và gió vào bên trong thật dễ dàng. Dù trời có oi bức thì nhà phố vẫn luôn đón được luồng gió mát. Tuy nhiên, phía trên vẫn đảm bảo an ninh cho nhà phố bởi những chấn song bằng gỗ đan thưa.
Mau Thiet Ke Biet Thu Pho 7x20m Hien Dai 6
Hồ bơi mang hơi ẩm mát lạnh vào nhà trong những ngày hè oi ả.
Mau Thiet Ke Biet Thu Pho 7x20m Hien Dai 7
Khoảng lộ thiên trong vườn tạo sự đối lưu không khí cho khuôn viên biệt thự phố.
Mau Thiet Ke Biet Thu Pho 7x20m Hien Dai 8
Những mảng gỗ phía trên hạn chế nắng cũng như đảm bảo an ninh được đan thưa hay khít tùy thuộc vào công năng của từng không gian trong căn biệt thự.
Mau Thiet Ke Biet Thu Pho 7x20m Hien Dai 9 Phần chuyển tiếp giữa tầng 1 và tầng 2 là chiếc cầu thang bậc gỗ được gia cố bằng khung sắt với lan can bằng kính. Khu vực cầu thang cũng là giếng trời của nhà phố nên ngập tràn ánh nắng. Cạnh cầu thang là mảng vườn xanh tươi be bé trên không đủ nắng để cây quang hợp, giàu sức sống để hấp thu dưỡng chất từ nước và đất.
Mau Thiet Ke Biet Thu Pho 7x20m Hien Dai 10
Cầu thang được thiết kế và bố trí ở khoảng lộ thiên tạo sự rộng rãi cho không gian bên trong, đồng thời không gây ngột ngạt như những cầu thang được sắp đặt ở góc khuất như vẫn thường thấy ở nhiều ngôi nhà. Tuy nhiên, việc cầu thang lộ thiên cũng có nhiều khuyết điểm: vào ban ngày hanh nắng, da dễ bị đen sạm dù có che chắn thế nào đi nữa nếu ở xứ nhiệt đới.
Mau Thiet Ke Biet Thu Pho 7x20m Hien Dai 11
Mảng vườn xanh um giàu sinh khí cạnh cầu thang.
Tầng 2 là không gian sinh hoạt riêng tư với phòng ngủ, nhà tắm, phòng làm việc… cùng một số công năng thư giãn, giải trí khác đáp ứng cho đời sống tinh thần của mỗi cá nhân. Ngôi nhà phố có một điểm khá ấn tượng: quang cảnh dù ở góc độ nào ở bên trong khi nhìn ra ngoài cũng đều hướng vườn, đem đến cảm giác thư thái, bình yên cho gia chủ.
Mau Thiet Ke Biet Thu Pho 7x20m Hien Dai 12
Phòng ngủ được trang trí đơn giản, đáp ứng đúng chức năng thư giãn.
Mau Thiet Ke Biet Thu Pho 7x20m Hien Dai 13
Một góc phòng làm việc và học tập lý tưởng với cửa sổ đối diện, hai bên là góc view ra khoảng vườn xanh mát.
Mau Thiet Ke Biet Thu Pho 7x20m Hien Dai 14
Lối hành lang cạnh cầu thang được ngăn cách bửa cửa kính dẫn đến các khu vực hoạt riêng tư.
 
Mau Thiet Ke Biet Thu Pho 7x20m Hien Dai 15
Phòng ngủ tinh gọn với sàn gỗ ấm áp cúng sắc trắng thanh nhã tạo sự cân bằng yên ả cho gia đủ đi vào giấc ngủ ngon.
Mau Thiet Ke Biet Thu Pho 7x20m Hien Dai 16
Nhà tắm rộng rãi theo hướng cộng sinh, mang thiên nhiên vào bên trong giúp thanh lọc không khí tạo cảm giác thư thái khi hòa mình cùng dòng nước mát lạnh, gột rửa bụi đường và bao mệt nhọc của một ngày làm việc căng thẳng.
Mau Thiet Ke Biet Thu Pho 7x20m Hien Dai 18
Mảng gạch không nung với các lỗ rỗng xen kẽ cho nhà tắm được thoáng khí.
Mảng gạch không nung với các lỗ rỗng xen kẽ cho nhà tắm được thoáng khí. Căn gác xép trên cùng trở thành thiên đường nghỉ dưỡng cho cả nhà cùng những buổi tiệc thân mật ngoài trời với bạn bè và gia quyến. Không gian gác xép được bày trí và sắp đặt công năng như một ngôi nhà mini có thể tách biệt với 2 tầng phía dưới. Sự đầy đủ về mặt tiện nghi là điều đáng đề cập đến bao gồm phòng khách, nhà bếp, phòng ngủ, nhà tắm, hồ bơi ngoài vườn.
Mau Thiet Ke Biet Thu Pho 7x20m Hien Dai 19
Tầng gác xép trở thành ngôi nhà mini của Biệt thự phố.
Mau Thiet Ke Biet Thu Pho 7x20m Hien Dai 20
Toàn cảnh về đêm trong Biệt thự phố: không gian trở nên ấm áp, mỗi thành viên như sống trọn vẹn trên từng tấc đất.
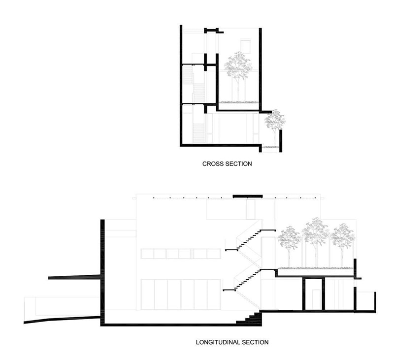
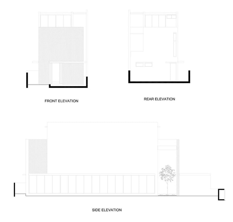
Bản vẽ thiết kế mẫu biệt thự phố: Mau Thiet Ke Biet Thu Pho 7x20m Hien Dai 21 Mau Thiet Ke Biet Thu Pho 7x20m Hien Dai 22 Mau Thiet Ke Biet Thu Pho 7x20m Hien Dai 23 Mau Thiet Ke Biet Thu Pho 7x20m Hien Dai 24 Mau Thiet Ke Biet Thu Pho 7x20m Hien Dai 25 Cùng Kiến trúc Bộ Ba tạo tác những đường nét sinh động cho cuộc sống của bạn. Mọi chi tiết cần được tư vấn về thiết kế và xây dựng, xin liên hệ: Công ty Cổ phần Thiết kế Xây dựng Bộ Ba Địa chỉ: Số 5 Trương Công Định – P.14 – Q.Tân Bình – Tp.HCM Hotline: 0911.64.11.77 Website: https://kientrucboba.com/ Email: info.congtyboba@gmail.com

Xem thêm:

Leave a Reply

Your email address will not be published. Required fields are marked *