Mẫu thiết kế nội thất nhà ngang 4m dài 15m đẹp tinh tế

Với sự khéo léo của các KTS, mẫu thiết kế nội thất nhà ngang 4m dài 15m chúng tôi giới thiệu trong bài viết sau sẽ mang lại cho bạn cái nhìn thú vị. Cùng với trải nghiệm về sự sang trọng, cao cấp của căn nhà phố 4 tầng hiện đại.

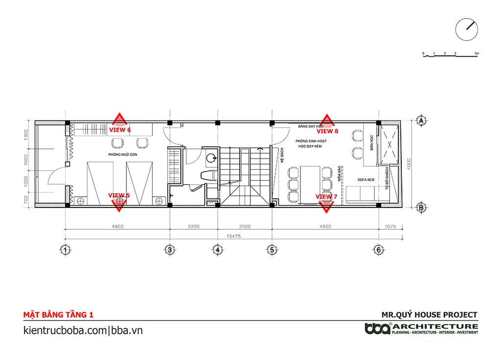
Mặt bằng công năng sử dụng các tầng

Thiết kế nội thất nhà nang 4m dài 15m Tầng trệt với phòng khách, bếp, khu vực ăn uống của gia đình và hai khoảng sân được bố trí rộng rãi. Thiết kế nội thất nhà nang 4m dài 15m Tầng 1 bao gồm không gian sinh hoạt chung, phòng ngủ dành cho con và khu vực vệ sinh riêng. Thiết kế nội thất nhà nang 4m dài 15m Tầng 2 là không gian dành riêng cho vợ chồng gia chủ với phòng ngủ master tiện nghi và một phòng làm việc tại nhà hiện đại, yên tĩnh. Thiết kế nội thất nhà nang 4m dài 15mThiết kế nội thất nhà nang 4m dài 15m Tầng thượng của mẫu thiết kế nhà phố, gia chủ đã yêu cầu bố trí một khoảng sân trước có trang trí để gia đình có thể nghỉ ngơi vào cuối tuần, phía sau là nơi trồng rau sạch và sân phơi. Diện tích còn lại, KTS đã bố trí một kho nhỏ, cùng phòng giặt đồ tiện lợi.

Thiết kế nội thất nhà ngang 4m dài 15m

Dựa theo yêu cầu từ gia chủ, các KTS của chúng tôi đã đưa ra phương án bố trí nội thất theo phong cách hiện đại, sử dụng hiệu quả không gian sinh hoạt, loại bỏ các góc chết trong nhà. Mỗi phòng, mỗi khu vực chức năng đều thể hiện được ý tưởng sáng tạo, cũng như thể hiện cá tính riêng của gia chủ, đồng thời mang lại sự bắt mắt và tính liên kết trong tổng thể không gian của căn nhà ngang 4m dài 15m này. Phòng khách
Thiết kế nội thất nhà nang 4m dài 15m
Thiết kế nội thất nhà nang 4m dài 15m
Việc kết hợp màu sắc trung tính, đi cùng những phụ kiện trang trí có thiết kế tinh xảo giúp tăng thêm nét sinh động cho căn phòng, cũng như tạo được sự sắc sảo cho không gian đón tiếp khách khứa của gia chủ. Thiết kế nội thất nhà nang 4m dài 15m Lựa chọn sử dụng nội thất có thiết kế riêng, thích hợp với diện tích và kích thước của căn phòng sẽ giúp tận dụng không gian nhà một cách tối đa, tạo cảm giác sang trọng, tinh tế. Bếp và phòng ăn Thiết kế nội thất nhà nang 4m dài 15m Không gian nấu nướng, ăn uống trong ngôi nhà được KTS thiết kế đơn giản, thuận tiện cho việc nội trợ. Song không vì thế mà làm mất đi sự sang trọng cần thiết. Thiết kế nội thất nhà nang 4m dài 15m Với bố cục, màu sắc, vật dụng nội thất được lựa chọn kỹ lưỡng, căn bếp và khu vực ăn uống của gia đình trở nên hài hoà, nhờ vào điểm nhấn màu sắc tươi sáng mang lại sự sinh động thoải mái cho người sử dụng. Điều này sẽ giúp cho bữa ăn của gia đình thêm đầm ấm và ngon miệng hơn. Phòng ngủ dành cho hai con Thiết kế nội thất nhà nang 4m dài 15m Vẫn là thiết kế nội thất với tone trung tính làm chủ đạo, đem lại chiều sâu cho không gian, tạo hiệu ứng thị giác khiến căn phòng thêm rộng rãi, cá tính phù hợp dành cho hai cậu con trai. Thiết kế nội thất nhà nang 4m dài 15m Ở đây, các KTS đã sử dụng vật liệu gỗ từ sàn nhà, cho đến các vật dụng nội thất được sử dụng trong phòng, tạo sự gần gũi với thiên nhiên, thân thiện cho sức khoẻ của trẻ. Hệ thống tủ kệ, bàn học được bố trí trong phòng giúp trẻ thoải mái có không gian riêng tư để đọc sách, học tập. Tạo môi trường yên tĩnh, giúp tập trung hơn. Khu vực sinh hoạt chung của gia đình Thiết kế nội thất nhà nang 4m dài 15m Được thiết kế theo hướng linh hoạt giữa các chức năng, khu vực này vừa là nơi sinh hoạt chung cho gia đình, vừa là nơi dạy kèm của hai con. Gia chủ đã yêu cầu bố trí nội thất hiện đại, thoải mái để cho các hoạt động hằng ngày trong nhà được tiện nghi, thoải mái nhất. Hệ thống tủ kệ, bàn ghế được bố trí, sắp xếp một cách khoa học cùng với việc phân chia bố cục căn phòng hợp lý, mang lại sự hài lòng mà gia chủ mong muốn. Phòng ngủ master hiện đại và tinh tế Thiết kế nội thất nhà nang 4m dài 15m Phòng ngủ master với nội thất hiện đại, tinh tế mang lại sự sang trọng bắt mắt với tiện nghi, công năng sử dụng thực tế cao. Tuy không quá cầu kỳ trong việc trang trí, nhưng lại vô cùng nhẹ nhàng và sắc nét. Điều này làm nên sự khác biệt, cũng như đem lại cảm giác yên tĩnh, xua tan những mệt mỏi sau ngày dài làm việc căng thẳng. Đem lại cho gia chủ một không gian nghỉ ngơi, thư giãn đúng như mong muốn. KTS đã rất khéo léo trong việc bố trí ánh ánh, kết hợp các vật liệu thiên nhiên, lựa chọn tone màu phù hợp với phong thuỷ mà vẫn giữ được sự liên kết cần thiết trong toàn bộ tổng thể căn nhà. Làm nổi bật nét tính cách và gout thẩm mỹ của gia chủ. Khu vực làm việc tại nhà Thiết kế nội thất nhà nang 4m dài 15m Không gian làm việc tại nhà được bố trí khoa học, đảm bảo cho nguồn sáng tự nhiên và nhân tạo được kết hợp hài hoà, đem lại nguồn năng lượng và cảm hứng cần thiết. Thiết kế nội thất nhà nang Thiết kế nội thất nhà nang 4m dài 15m4m dài 15m Các KTS của chúng tôi khi thiết kế nội thất phòng làm việc này đã tính toán kỹ lưỡng tới yếu tố ánh sáng, bố cục sắp xếp các món vật dụng. Cố gắng đưa ánh sáng từ phía cửa sổ. Với diện tích và không gian rộng rãi, được sắp xếp gọn gàng tạo ra sự tiện nghi, có tính ứng dụng cao trong quá trình sử dụng cho gia chủ. Ở đây, KTS đã thêm vào hệ thống tủ kệ trên tường được trang trí xung quanh bàn rất tiện dụng. Nếu bạn yêu thích phong cách, cũng như mẫu thiết kế nội thất ngôi nhà mà chúng tôi giới thiệu trong bài viết. Hãy liên hệ ngay với chúng tôi để có thêm thông tin tư vấn nhanh chóng và chính xác nhất. Mọi nhu cầu xin mời liên hệ: CÔNG TY CỔ PHẦN THIẾT KẾ XÂY DỰNG BỘ BA – Địa chỉ: Số 5 Trương Công Định, P.14, Q.Tân Bình, Tp.HCM – Email: info.congtyboba@gmail.com – Điện thoại: 0283.811.9077 – Hotline: 0911.64.11.77 – Website: https://kientrucboba.com

Leave a Reply

Your email address will not be published. Required fields are marked *