Biệt thự 3 tầng hiện đại sang trọng với không gian sống đẳng cấp

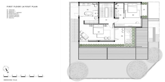
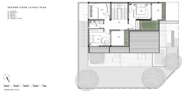
Những năm gần đây, mẫu biệt thự theo phong cách hiện đại ngày càng chiếm được cảm tình của nhiều người. Không chỉ bởi hình khối mạch lạc, chỉn chu mà còn là sự sáng tạo trong thiết kế. Đưa không gian xanh vào nhà, tạo nên sự gắn kết, hòa nhập với thiên nhiên. Con người nhờ đó mà có những giờ phút thoải mái, được trải nghiệm cuộc sống tiện nghi, đẳng cấp. Được hít thở bầu không khí trong lành ngay tại nhà mình mà chẳng cần phải đi đâu xa. Bài viết hôm nay xin mời các bạn ghé thăm mẫu biệt thự hiện đại tại khu Indochina Villas Saigon thành phố Hồ Chí Minh. Thông tin chi tiết nhà biệt thự hiện đại Tầng trệt: Gara để xe, phòng khách liền phòng ăn, sân vườn. Tầng 2: 2 phòng ngủ nối liền phòng tắm. Tầng 3: 2 phòng ngủ, sân thượng.

Về ý tưởng thiết kế biệt thự hiện đại

Biệt thự 3 tầng hiện đại
Biệt thự 3 tầng hiện đại
Ngôi biệt thự này thuộc dạng tái thiết kế căn hộ mẫu của khu biệt thự Indochina Villas Saigon. Nằm trong khu biệt thự cao cấp tại vị trí chiến lược của thành phố Hồ Chí Minh. Lấy cảm hứng từ miền đất nhiệt đới với khí hậu nóng ẩm 2 mùa rõ rệt. Căn biệt thự được thiết kế hòa nhập với quang cảnh chung và khí hậu nơi đây. Tạo nên ấn tượng về một nơi nghỉ dưỡng sang trọng, đẳng cấp, tràn đầy nắng và gió với không khí trong lành, không gian thư thái…

Ngoại thất

Biệt thự 3 tầng hiện đại Biệt thự 3 tầng hiện đại Biệt thự 3 tầng hiện đại Biệt thự 3 tầng hiện đại Mục đích thiết kế biệt thự là tạo nên một không gian kết nối giữa trong và ngoài, giữa kiến trúc xây dựng và khoảng xanh tự nhiên. Vì vậy hoa cỏ, cây cối được lồng ghép xen kẽ với ngôi nhà, trên các tầng, tại mỗi phòng như một phần ngẫu nhiên. Biệt thự 3 tầng hiện đại   Những ô cửa kính lớn tạo nên không gian sang trọng, hiện đại. Giàn lam gỗ che nắng vừa tạo ra bóng mát và giảm nhiệt cho toàn bộ khu phòng ngủ và phòng khách. Đây cũng chính là cách vận dụng vật liệu tự nhiên trong thiết kế mang lại sự hấp dẫn cho ngôi nhà và cảm giác thân thiện với thiên nhiên.

Nội thất

Biệt thự 3 tầng hiện đại Biệt thự 3 tầng hiện đại Tầng dưới là phòng khách liền phòng bếp được thiết kế tiện nghi, hiện đại. Màu sắc tươi sáng kết hợp với nội thất được lựa chọn tỉ mỉ tạo thêm phần thanh lịch, tinh tế cho không gian chung. Biệt thự 3 tầng hiện đại Bếp ăn bài trí đơn giản, gọn gàng nhưng vẫn toát lên sự sang trọng. Phòng khách được phân cách với bếp ăn bởi bộ bàn ăn thiết kế mang phong cách trang nhã. Khu vực liên phòng này rất thông thoáng bởi đều hướng ra cửa lớn vô cùng rộng. Nhờ đó mà người ta có thể vừa trò chuyện hay nấu ăn vừa quan sát cảnh quan bên ngoài một cách dễ dàng. Lối lên tầng là hệ thống cầu thang sàn gỗ lan can kính đóng góp vào sự hiện đại, tinh tế.  Màu nâu của gỗ tự nhiên cũng là điểm nhấn trên nền gam màu trắng chủ đạo. Tầng trên là phòng ngủ và nhà tắm thiết kế hiện đại. Có thể nhận thấy đặc điểm chung của biệt thự là tất cả các không gian đều tràn ngập ánh sáng. Mỗi phòng nhìn ra là những cây dừa, cây cau, loại cây đặc trưng của vùng nhiệt đới.  Tông màu nâu đất được vận dụng một cách khéo léo vừa tạo ra sự kết nối, hòa hợp với thiên nhiên mà vẫn không mất đi tính thẩm mỹ của ngôi nhà. Việc sử dụng những vật liệu tự nhiên trong thiết kế và trang trí nội thất tạo nên sự nhẹ nhàng, cảm giác thân thiện, gần gũi.  Với tiêu chí mang lại không gian sống tiện nghi, hài hòa cho chủ đầu tư. Các kiến trúc sư đã nỗ lực tạo ra không gian kết nối giữa con người với cảnh vật xung quanh để mỗi thành viên trong gia đình đều cảm thấy thoải mái khi trải nghiệm một cuộc sống đẳng cấp, sang trọng. Biệt thự 3 tầng hiện đại Biệt thự 3 tầng hiện đại Biệt thự 3 tầng hiện đại Mỗi phòng ngủ trên tầng 2 và tầng 3 đều được thiết kế ban công rộng thoáng cùng những chậu cảnh xanh mướt. Mục đích để chủ nhà có thể ngắm toàn cảnh xung quanh biệt thự và một góc thành phố. Con người sẽ có những giờ phút thư giãn thoải mái, ngồi đọc sách, thư giãn.
Biệt thự 3 tầng mái bằng – sự lựa chọn của những gia đình hiện đại
CÔNG TY CỔ PHẦN THIẾT KẾ XÂY DỰNG BỘ BA – Địa chỉ: Số 5 Trương Công Định, P.14, Q.Tân Bình, Tp.HCM – Email: info.congtyboba@gmail.com – Điện thoại: 0283.811.9077 – Hotline: 0911.64.11.77 – Website: https://kientrucboba.com

Leave a Reply

Your email address will not be published. Required fields are marked *