Mẫu biệt thự 15x30m nhiệt đới thiết kế mộc và mở

Kiến trúc Bộ Ba xin giới thiệu một giải pháp cho biệt thự phố nhiệt đới 15x30m, tràn đầy ánh sáng tự nhiên của chất mộc nhưng vẫn mang đậm phong cách hiện đại tinh tế. Biệt thự phố miền nhiệt đới từ khâu thiết kế đến thi công đều phải cân nhắc đến nhiều yếu tố về kết cấu, vật liệu, đổ mống, tạo nền,… để đảm bảo không gian sống phải mát mẻ, thoáng khí, tránh nắng nhưng phải đầy đủ ánh sáng. Lên ý tưởng thiết kế đã không hề đơn giản huống chi đến giai đoạn thực thi công trình.

Mẫu biệt thự 15x30m tràn đầy ánh sáng tự nhiên

Biệt thự nhiệt đới đã tạo ấn tượng đầu tiên bởi những mảng tường che chắn khung kim loại kiên cố được lợp từ những thanh gỗ mảnh như một lồng chim theo cung cách hiện đại hình hộp mở.
Mau Biet Thu Pho 15x30m Moc
Biệt thự phố nhiệt đới tràn đầy ánh sáng tự nhiên với ý tưởng thiết kế độc đáo.
Thay vì là tường gạch, tường đá mẫu biệt thự đã dùng chất liệu gỗ làm chủ đạo để gia tăng sự thông thoáng từ mặt ngoài của căn nhà. Đó chỉ là lớp ngoài, phần khuôn viên nhà được thiết kế mái bằng với trần ốp thạch cao mát mẻ, sáng sủa cách giàn gỗ phía trên một khoảng để không  bị bít bùng. Đây là dự án xây dựng và tu bổ biệt thự phố nhiệt đới ở Úc, mang phong cách khá tách biệt với địa phương. Các KTS và đội ngũ thi công đã bổ sung thêm khu vực sinh hoạt, nâng cấp các phòng tắm hiện có, tủ quần áo, cải thiện lưu thông nội bộ, cung cấp hồ bơi và các khu vực tiện ích tạo cảnh quang cho biệt thự phố. Mau Biet Thu Pho 15x30m Moc 2 Giải pháp thiết kế biệt thự phố tập trung vào sự tương tác với khu vườn và không gian ngoài trời. Trong đó, các mảng tường gỗ và trần nhà cũng là một trong những điểm hướng đến sự tương tác với không gian bên ngoài. Khi bước vào ngôi nhà, hành lang chính cung cấp tầm nhìn thẳng ra khu vườn phía sau. Khi những thành viên trong gia đình đi vào phía sau, khung cảnh bên ngoài sẽ góp phần tô điểm cho các khu vực sinh hoạt. Mau Biet Thu Pho 15x30m Moc 3 Vườn phía Bắc được nhìn ra từ cửa sổ là tấm kính trong suốt có những khung gỗ vuông vức bao quanh giống như ta đang chiêm ngưỡng một bức tranh thiên nhiên được lộng khung. Phía dưới là kệ tủ cạnh bên bộ ghế sofa ở phòng khách biệt thự. Mau Biet Thu Pho 15x30m Moc 4
Mau Biet Thu Pho 15x30m Moc 5
Phòng khách biệt thự phố có view hướng vườn lãng mạn, rộng thoáng.
Khu vực ăn uống và bếp của biệt thự sử dụng chung không gian với phòng khách tạo nên sự ấm cúng. Khoảng giữa phòng khách và khu nấu nướng, ăn uống là lối đi dẫn vào khu sinh hoạt cá nhân gồm phòng ngủ và nhà vệ sinh. Bởi chất và màu gỗ choáng ngộp từ ngoài vào trong nên nội thất biệt thự nhiệt đới chuộng gam màu trung tính để không gian có phần hài hòa. Mau Biet Thu Pho 15x30m Moc 6
Mau Biet Thu Pho 15x30m Moc 7
Nhà bếp biệt thự phố nhiệt đới với diện tích vừa phải, thiết kế đơn giản nhỏ gọn đậm chất hiện đại.
Mau Biet Thu Pho 15x30m Moc 8
Khu ăn uống ấm cúng với khoảng cách gần bếp thuận tiện trong việc di chuyển và quan sát khi trong nhà có trẻ nhỏ.
Việc mở rộng phía sau được khuất sau những giàn khung gỗ giúp hạn chế ánh sáng mặt trời phía Bắc và phương Tây nhưng không làm hạn chế tầm nhìn giám sát khu vực hồ bơi vì trong nhà có trẻ nhỏ. Các tấm kính trên các khung cửa ra vào, cửa sổ bằng gỗ trở thành phương tiện lấy sáng cho không gian bên trong có thể được mở ra để tối đa hóa mặt trời buổi chiều trong mùa đông. Mau Biet Thu Pho 15x30m Moc 9
Mau Biet Thu Pho 15x30m Moc 10
Một góc ngắm cảnh tuyệt vời ở hàng hiên phía sau biệt thự phố với bộ bàn ghế gỗ mộc mạc trong buổi chiều tà bình lặng.
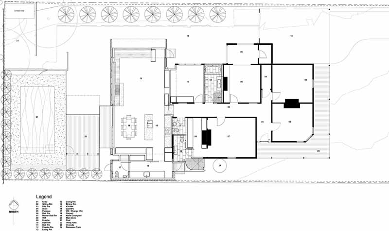
Bản vẽ chi tiết Biệt thự phố nhiệt đới: Mau Biet Thu Pho 15x30m Moc 11 Mau Biet Thu Pho 15x30m Moc 12 Một số thông tin cơ bản về biệt thự phố nhiệt đới: Đội ngũ thiết kế: Warc Studio Architects Quốc gia: Camberwell, Australia KTS chính: Andrew Wilson, Wesley Baigent Năm thực hiện: 2016 Cùng Kiến trúc Bộ Ba tạo tác những đường nét sinh động cho cuộc sống của bạn. Mọi chi tiết cần được tư vấn về thiết kế và xây dựng, xin liên hệ: Công ty Cổ phần Thiết kế Xây dựng Bộ Ba Add: Số 5 Trương Công Định – P.14 – Q.Tân Bình – Tp.HCM Hotline: 0911.64.11.77 Website: https://kientrucboba.com/ Email: info.congtyboba@gmail.com

Xem thêm:

Leave a Reply

Your email address will not be published. Required fields are marked *