Mẫu biệt thự 2 tầng 12x25m cao nguyên hiện đại và mộc

Mẫu biệt thự 2 tầng 12x25m trên diện tích xây dựng 800m2 Kiến trúc Bộ Ba xin giới thiệu mang phong cách Hiện đại – Mộc là khối hộp bê tông sừng sững giữa rừng núi. KHỐI HỘP BÊ TÔNG TRẦN SỪNG SỮNG GIỮA ĐỒI Không xô bồ, bon chen trước nhịp sống phố thị đông đúc; không ồn ào giữa tiếng còi xe inh ỏi cả ngày lẫn đêm, vùng đất cao nguyên tuy hoang sơ nhưng thích hợp trở thành không gian sống êm đềm và tĩnh lặng cho những ai yêu thích cảnh núi non.
Mau Biet Thu 2 Tang 12x25 Cao Nguyen (7)
Mẫu biệt thự 2 tầng 12x25m hiện đại – Mộc trên dải đất cao nguyên nắng cháy
Sự kết hợp những mảng khối bê tông thô trần với những ô cửa kính trong suốt làm nên một chỉnh thể hài hòa, trong vẻ mộc mạc vẫn ánh lên chất hiện đại, ngập tràn ánh sáng nhưng không oi bức.
Mau Biet Thu 2 Tang 12x25 Cao Nguyen (6)
Bê tông với kính – một sự hài hòa đến lạ
Mẫu biệt thự cao nguyên 2 tầng mang phong cách mộc hiện đại với nội thất tinh gọn nhưng ngập tràn màu sắc trong gam màu Pastel trẻ trung, mới mẻ từ phòng khách đến nhà tắm.
Mau Biet Thu 2 Tang 12x25 Cao Nguyen (4)
Thềm đá lỏm chỏm trước hiên nhà, ai đã đi qua để lại dấu chân in hằn bóng dáng của thời gian
Tầng trệt của ngôi nhà với khoảng ban công đón gió lý tưởng không có sự ngăn cách giữa thiên nhiên tạo nên một khoảng trời bao la và tự do. Mái hiên bê tông vững chãi đủ không gian cho những ngày nắng đẹp để đứng ngắm và ôm cả khung cảnh hùng vĩ của núi non vào tầm mắt.
Mau Biet Thu 2 Tang 12x25 Cao Nguyen (13)
Khoảng không gian ban công bao la giao hòa cùng núi đồi xanh ngát
Mau Biet Thu 2 Tang 12x25 Cao Nguyen (14)
Từ mảnh vườn bên hông ngôi nhà, một chồi non đang vươn mình uống nắng
Tầng trệt là khu vực sinh hoạt chung gồm phòng khách, phòng bếp và nhà ăn hầu như không có sự ngăn cách. Không gian như mở rộng lẫn chiều dài và chiều ngang. Bê tông cùng những thanh sắt gia cố chắc chắn bao bọc lấy ngôi nhà trước bốn bề thiên nhiên phủ lấp.
Mau Biet Thu 2 Tang 12x25 Cao Nguyen (16)
Khi sắc màu trở thành bản đồng ca của tuổi trẻ
Chất liệu gỗ ở nội thất được sử dụng cho khu vực ăn uống, sinh hoạt chung nổi bật trên tone màu trắng xám của kim loại từ chụp đèn đến khuôn bếp cẩm thạch. Khối hộp bê tông trần thoắt ẩn thoắt hiện trong rặng cây ở lưng chừng đồi, mang đến một luồng sinh khí ấm áp, bình dị hòa vào mây gió bàn ngạt ở miền cao nguyên
Mau Biet Thu 2 Tang 12x25 Cao Nguyen (24)
Không gian bếp tiện nghi với sắc nâu vàng nổi bật trên tone màu trắng – xám chủ đạo của kim loại và đá.
Mau Biet Thu 2 Tang 12x25 Cao Nguyen (25)
Một thoáng nào đó ta bất chợt nghĩ mình đang chiêm ngưỡng một bức tranh tĩnh vật trong nhà vệ sinh
Mau Biet Thu 2 Tang 12x25 Cao Nguyen (26)
Hãy hòa điệu vào dòng chảy róc rách của nước, chạm tay vào những viên sỏi trắng ngần nhìn mình qua những tấm kính trong suốt để thả trôi những nhọc nhằn của cuộc sống vào xoáy nước dưới chân
Mau Biet Thu 2 Tang 12x25 Cao Nguyen (27)
Lặng im ngồi trên chiếc ghế nhấp nháp tách trà nóng bên ánh đèn vàng ấm áp để nhìn ra khung cửa nơi những mầm sống non xanh phơi phới đang ngày một sinh sôi
Mau Biet Thu 2 Tang 12x25 Cao Nguyen (29)
Đá trơ lì, đá gồ ghề như bản chất hoang dã của thiên nhiên không yêu kiều, tinh xảo
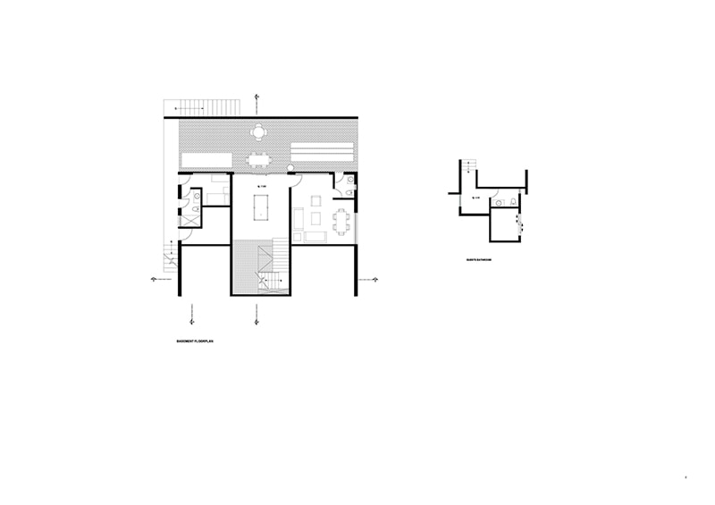
Ban Ve Mau Biet Thu 2 Tang 12x25 Cao Nguyen Ban Ve Mau Biet Thu 2 Tang 12x25 Cao Nguyen 4 Ban Ve Mau Biet Thu 2 Tang 12x25 Cao Nguyen 3 Ban Ve Mau Biet Thu 2 Tang 12x25 Cao Nguyen 2 Hòa mình vào nhịp sống tĩnh lặng, yên ả trong khung cảnh núi rừng bạt ngàn để thấy đời vẫn tươi đẹp: sống chậm lại để yêu thương nhiều hơn cùng Kiến trúc Bộ Ba. Mau Biet Thu 2 Tang 12x25 Cao Nguyen (3) Mọi chi tiết cần được tư vấn về thiết kế và xây dựng, xin liên hệ: Công ty Cổ phần Thiết kế Xây dựng Bộ Ba Add: Số 5 Trương Công Định – P.14 – Q.Tân Bình – Tp.HCM Hotline: 0911.64.11.77 Website: https://kientrucboba.com/ Email: info.congtyboba@gmail.com >>> Tổng hợp 13 phong cách thiết kế biệt thự phố được ưa chuộng 2018

Leave a Reply

Your email address will not be published. Required fields are marked *