Giới thiệu mẫu biệt thự 2 tầng mini màu sắc tươi sáng

Đối với các gia đình trẻ hoặc có ít thành viên thì việc lựa chọn các mẫu biệt thự 2 tầng mini được xem là lựa chọn thích hợp nhất. Ngoài giúp tiết kiệm chi phí lựa chọn này còn giúp đem lại cho gia đình bạn một không gian sống ấm cúng và tiện nghi. Dưới đây là một trong những mẫu biệt thư mini 2 tầng mang nét đẹp và sự tiện nghi, ấm cùng đó mời các bạn cùng tham khảo và cảm nhận.

Phối cảnh mẫu biệt thự 2 tầng mini đẹp

Mau Biet Thu 2 Tang Mini
Mẫu biệt thự 2 tầng mini
Nét đẹp khỏe khoắn, đơn giản và hài hòa chính là những mỹ từ thích hợp nhất để miêu tả nét cuốn hút của mẫu biệt thự đẹp này. Nhìn chung, kiến trúc tổng thể ngôi biệt thự được thiết kế khá vuông vức với các đường nét kiến trúc khỏe khoắn giúp làm toát lên vẻ đẹp hiện đại, sang trọng và kiên cố. Tông màu trắng kết hợp cùng màu cam của gạch men càng làm cho hình ảnh ngôi biệt thự trở nên cuốn hút hơn với vẻ tươi mới, tràn đầy sức sống. Mau Biet Thu 2 Tang Mini (2) Ở góc chụp nghiêng mẫu biệt thự 2 tầng đơn giản cũng hiện lên thật đẹp với vẻ sang trọng, hiện đại không kém. Mau Biet Thu 2 Tang Mini (3) Mái ngôi biệt thự được thiết kế dạng mái thái cũng được xem là điểm nhấn quan trọng làm nên nét đẹp sang trọng, hiện đại cho kiến trúc tổng thể công trình. Nhìn từ trên cao xuống ngôi biệt thự hiện lên thật cuốn hút với vẻ đẹp bề thế, kiên cố.

Nội thất bên trong mẫu biệt thự 2 tầng mini đẹp

Bên cạnh vẻ đẹp trong các đường nét kiến trúc ngoại thất, thiết kế biệt thự còn mang lại cho gia chủ sự hài lòng tuyệt đối bởi không gian sống vô cùng tiện nghi, sang trọng và đẳng cấp. Hãy cùng tham quan và cảm nhận! Mau Biet Thu 2 Tang Mini (4) Đầu tiên là phòng khách, không quá rộng nhưng các đồ dùng nội thất được bố trí khá khoa học nên tạo cho người dùng cảm giác thư thái, dễ chịu. Cửa chính được thiết kế khá rộng giúp lấy sáng tốt, đảm bảo duy trì không gian sinh hoạt thoáng mát, thoải mái. Mau Biet Thu 2 Tang Mini (5) Bước vào căn bếp hẳn bạn sẽ càng cảm thấy hài lòng bởi không gian vô cùng sạch sẽ, thoáng mát và tiện nghi. Từ tủ bếp, kệ đựng chén bát đến bàn ăn đều được bố trí khoa học, gọn ngàng và lựa chọn kỹ lưỡng. Đèn chùm với áng sáng màu vàng càng giúp không gian trở nên ấm cúng hơn trong các bữa ăn gia đình. Mau Biet Thu 2 Tang Mini (6) Phòng ngủ mẫu biệt thự 2 tầng mini cũng được thiết kế và bố trí sang trọng, tiện nghi không kém. Không quá cầu kỳ nhưng các đồ dùng trong phòng đều được chọn lựa kỹ lưỡng, từ ra giường, kệ, tủ đến những chiếc đèn chiếu sáng, tất cả đểu rất tiện nghi và đem lại sự hài hòa giúp đảm bảo tính thẩm mỹ kiến trúc cũng như sự thư thái, ấm cúng cho gia chủ khi bước vào. Mau Biet Thu 2 Tang Mini (1) Phòng vệ sinh thì được thiết kế khá rộng và ốp gạch tạo cảm giác ngăn nắp, sạch sẽ, đặc biệt có kết hợp cửa số nhỏ tạo sự thông thoáng và cảm giác thư thái cho người sử dụng.

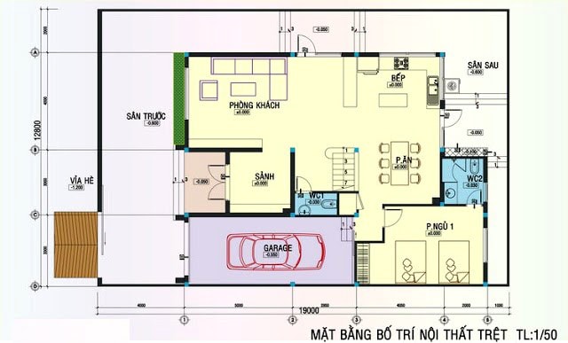
Mặt bằng thiết kế mẫu biệt thự 2 tầng mini

Để cảm nhận rõ nét hơn sự tiện nghi trong không gian các phòng sinh hoạt mời bạn cùng tham khảo các bản vẽ thiết kế mặt bằng của mẫu biệt thự 2 tầng mini ngay dưới đây. Ban Ve Mau Biet Thu 2 Tang Mini Quan sát bản vẽ trên bạn có thể thấy tầng trệt ngôi biệt thự sẽ là không gian dùng của garage xa, phòng khách, phòng bếp kết hợp bếp ăn và 1 phòng ngủ master cho khách 2 phòng vệ sinh (1 phòng được bố trí cạnh phòng ngủ và 1 phòng được bố trí cạnh sảnh cầu thang). Kích thước các phòng sinh hoạt không quá rộng nhưng được bố trí khá linh hoạt và khoa học nên vẫn luôn đảm bảo về sự tiện nghi, thông thoáng. Ban Ve Mau Biet Thu 2 Tang Mini 2 Tầng 2 ngôi biệt thự là không gian các Kiến trúc sư dành để bố trí 1 phòng sinh hoạt chung, 1 phòng thay đồ, 2 phòng ngủ và 2 phòng vệ sinh. Trong đó phòng sinh hoạt chung được bố trí ở giữa hai phòng ngủ, thẳng lối cầu thang tầng trệt đi lên giúp tạo sự thuận lợi cho các thành viên trong việc sinh hoạt, nghỉ ngơi, họp mặt và trao đổi các công việc chung của gia đình… Mỗi mẫu thiết kế biệt thự đều sở hữu những nét đẹp kiến trúc riêng, do đó tùy vào sở thích cũng như điều kiện tài chính mà bạn bạn cân nhắc lựa chọn những mẫu biệt thự 2 tầng mini hoặc các mẫu thiết thiết kế nhà ở cũng như biệt thự khác. Hãy chia sẻ cùng chúng tôi những ý tưởng thiết kế xây dựng ngôi nhà tương lại của bạn để được tư vấn, hỗ trợ tốt nhất nhé.

Leave a Reply

Your email address will not be published. Required fields are marked *