Mẫu biệt thự 200m2 trên diện tích 10×20 ấn tượng tại Quảng Ninh

Mẫu biệt thự 200m2 trên diện tích 10×20 ấn tượng tại Quảng Ninh, với thiết kế hiện đại, mẫu biệt thự hiện lên sang trọng giữa vô số những ngôi nhà ống xung quanh. Khu đất rộng 10m x 20m nằm trong khu đô thị mới, cư dân đông đúc với lối sống công nghiệp lâu đời, tình trạng khai thác than và hoạt động của các nhà máy phần nào gây ô nhiễm nặng nề cho không khí nơi đây.
Mau Biet Thu 200m2 10x20 Quang Ninh
Mãu biệt thự 200m2
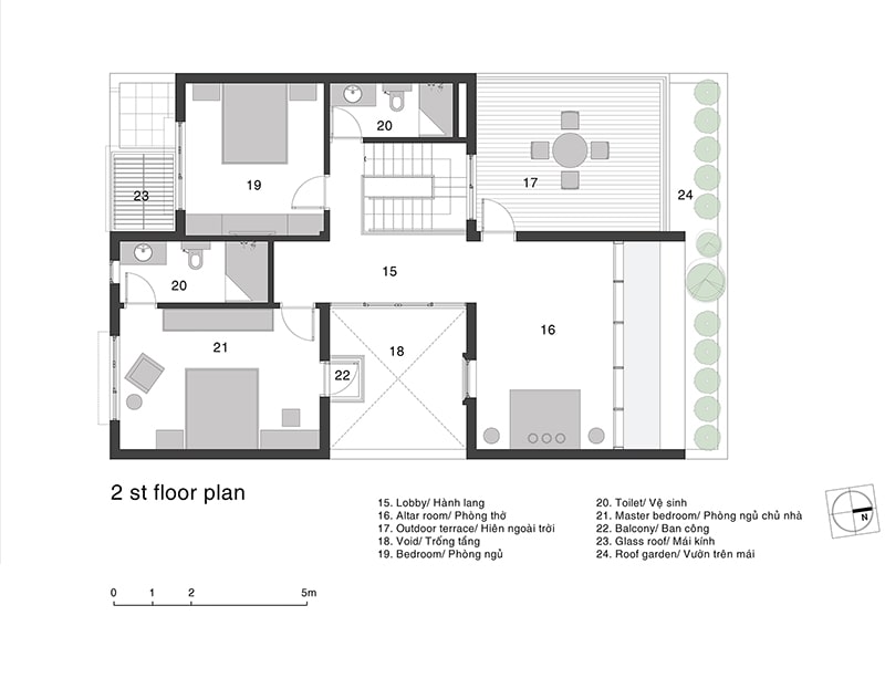
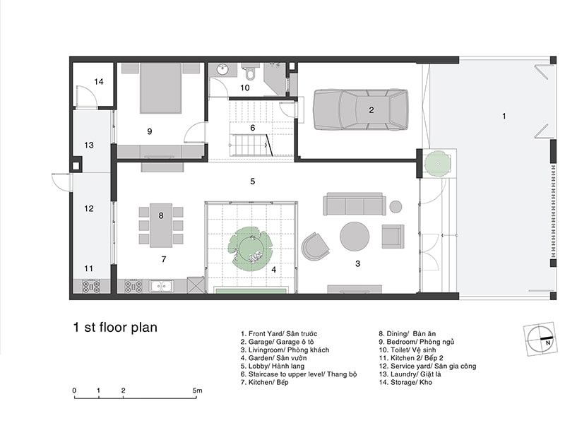
Mau Biet Thu 200m2 10x20 Quang Ninh 2 Mau Biet Thu 200m2 10x20 Quang Ninh 3 Ngôi nhà được thiết kế cho hai vợ chồng tuổi trung niên có 2 người con gái định cư ở xa và lâu lâu mới về; hai vợ chồng đều là người yêu thiên nhiên và không thích sự ồn ào của lối sống đô thị. Bằng cách tạo khoảng trống trồng cây xanh ở phần lõi ngôi nhà cùng với việc sử dụng gỗ mộc, đá và cây xanh, HP2 house muốn đem đến cho chủ nhân ngôi nhà một cuộc sống gần gũi với thiên nhiên, được đón nắng mưa vào trong công trình, ở đó chủ nhân ngôi nhà phần nào được hít thở không khí trong lành hơn, với tầm nhìn hướng vào bên trong đem lại cảm giác bình yên hơn sau dài ngày dài mệt mỏi bên ngoài. Mau Biet Thu 200m2 10x20 Quang Ninh 4 Mau Biet Thu 200m2 10x20 Quang Ninh 5 Mau Biet Thu 200m2 10x20 Quang Ninh 6 Mau Biet Thu 200m2 10x20 Quang Ninh 7 Ở Việt Nam, nắng hướng Tây luôn là ánh nắng nóng nhất trong ngày, vì vậy công trình đã bố trí các không gian phụ như gara, vệ sinh, cầu thang, phòng ngủ phụ về hướng Tây để hạn chế tiếp xúc với bức xạ mặt trời đối với các khu vực thường xuyên sử dụng hơn. Phần sân vườn ở trung tâm ngôi nhà được bố trí ở mặt hướng Đông, để đón hướng gió mát Đông Nam tạo thông gió tự nhiên và đưa ánh sáng tự nhiên vào sâu trong ngôi nhà, từ đó phần nào giúp công trình tiết kiệm rất nhiều năng lượng. Mặt ngoài công trình sử dụng hệ thống lam gỗ, kính tạo điểm nhấn cho mặt đứng ngoài ra còn có tác dụng đón ánh sáng tự nhiên vào trong công trình mà vẫn đảm bảo ninh. Phần mi đua rộng và vườn trên mái hạn chế ánh nắng trực tiếp chiếu thẳng vào bên trong ngôi nhà. Mau Biet Thu 200m2 10x20 Quang Ninh 8 Mau Biet Thu 200m2 10x20 Quang Ninh 9 Mau Biet Thu 200m2 10x20 Quang Ninh 10 Nhiều quan niệm cho răng nhà kính không thể áp dụng ở nước ta với khi hậu nắng nóng gần như quanh năm, điều nay là chưa đúng vì những kiến trúc sư nhiều năm kinh nghiệm sẽ có những phương án xử lý hiệu quả bằng cách lựa chọn kích thước, phương hướng bố trí phù hợp. Mau Biet Thu 200m2 10x20 Quang Ninh 11 Mau Biet Thu 200m2 10x20 Quang Ninh 12 Khoảng đệm với cây xanh và thiết kế mở là điểm nhấn ấn tượng kiến trúc sư dành tặng cho công trình biệt thự 2 tầng, với diện tích rộng thoáng, những vị trí như vậy góp phần tạo nên nét độc đáo cho công trình kiến trúc mà không làm ảnh hưởng đến những chức năng khác. Mau Biet Thu 200m2 10x20 Quang Ninh 13 Mau Biet Thu 200m2 10x20 Quang Ninh 14 Mau Biet Thu 200m2 10x20 Quang Ninh 15 Mau Biet Thu 200m2 10x20 Quang Ninh 16 Mau Biet Thu 200m2 10x20 Quang Ninh 17 Hệ thống ánh sáng bên ngoài và trong mẫu thiết kế nhà đẹp cho phép công trình hiện lên lung linh cả vào thời điểm ban đêm. Mau Biet Thu 200m2 10x20 Quang Ninh 18 Mau Biet Thu 200m2 10x20 Quang Ninh 19 Mau Biet Thu 200m2 10x20 Quang Ninh 20 Mau Biet Thu 200m2 10x20 Quang Ninh 21 Mau Biet Thu 200m2 10x20 Quang Ninh 22 Mẫu biệt thự 2 tầng 200m2 được thiết kế và thi công hoàn thiện sự tính toán hợp lý mang đến không gian sống không những tiện nghi về mặt chức năng mà còn là một tác phẩm nghệ thuật đậm tính thẩm mỹ. Xem thêm: 7 mẫu biệt thự vườn 2 tầng mái thái 3 phòng ngủ đơn giản kèm bản vẽ chi tiết

Nguồn: Tạp chí kiến trúc Ashui

Leave a Reply

Your email address will not be published. Required fields are marked *