Mẫu nhà ống đẹp 3 tầng 4x12m thiết kế mở tối ưu diện tích

Khi quỹ đất ở các khu đô thị ngày càng thu hẹp và nhu cầu sống ngày càng tăng, bắt buộc các KTS phải đưa ra được những thiết kế phù hợp với nhu cầu sinh hoạt của gia chủ một cách hoàn thiện nhất. Một trong những mẫu nhà phố được nhiều người lựa chọn xây dựng hiện nay là nhà ống 3 tầng đẹp, có thiết kế hiện đại với bố cục không gian hài hòa.

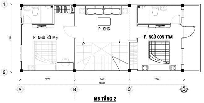
Bản vẽ bố trí không gian sinh hoạt

Mẫu nhà ống 3 tầng với ba phòng ngủ, cùng các không gian sinh hoạt tiện nghi là lựa chọn thích hợp cho những gia đình trẻ có từ 3 – 5 thành viên. Bạn có thể tham khảo bản vẽ bố trí chức năng các khu vực của ngôi nhà để có cái nhìn chi tiết hơn. Mẫu nhà ống đẹp 3 tầng 4x12m Tầng 1: Được thiết kế với phòng khách, bếp nấu và phòng của gia đình. Khu vực sân trước và sau, giúp cho ngôi nhà có thêm không gian kết nối với thiên nhiên, ở đây gia chủ có thể trồng và trang trí cây xanh, mang lại nguồn không khí trong lành cho gia đình. Mẫu nhà ống đẹp 3 tầng 4x12m Tầng 2: Thông thường, trong các thiết kế nhà ống, tầng 2 luôn được gia chủ lựa chọn làm nơi sinh hoạt riêng tư cho gia đình. Với căn nhà này cũng vậy, KTS đã bố trí hai phòng ngủ và một phòng sinh hoạt chung tại đây. Ở mỗi phòng ngủ đều được bố trí thêm phòng vệ sinh riêng, điều này giúp cho sinh hoạt hàng ngày của các thành viên trong nhà luôn được đảm bảo sự tiện nghi, thoải mái nhất. Mẫu nhà ống đẹp 3 tầng 4x12m Tầng 3: Các mẫu nhà ống hiện đại luôn có điểm chung là diện tích hạn chế, không quá rộng để có thể trông cây xanh hoặc tạo những khu vườn rộng rãi cho gia đình. Vì vậy, sân thượng là phương án thay thế hiệu quả mà KTS mang đến cho gia chủ. Mẫu nhà ống 3 tầng 4x12m cũng vậy, KTS đã thiết kế tầng 3 với một phòng ngủ dành cho con gái, phía trước là phòng thờ và một khoảng sân thượng thoáng đãng. Ở đây, gia chủ có thể trồng cây xanh, tạo không gian nghỉ ngơi, thư giãn thoải mái cho gia đình vào dịp cuối tuần. Vừa đảm bảo được sự riêng tư, vừa đảm bảo được những yêu cầu thiết yếu cho cuộc sống hàng ngày.

Khám phá không gian nội thất tiện nghi

Các KTS không chỉ đem lại sự hài hòa, hợp lý trong bố cục căn nhà ống 3 tầng đẹp này, mà còn giúp gia chủ thể hiện được phong cách, cá tính riêng của mình thông qua việc trang trí, thiết kế nội thất cho ngôi nhà.
Mẫu nhà ống đẹp 3 tầng 4x12m
Mẫu nhà ống đẹp 3 tầng 4x12m
Phòng khách được thiết kế khá đơn giản, song toát lên vẻ đẹp tinh tế, cao cấp thông qua các món đồ nội thất được đặt làm riêng, vừa vặn với kích thước của căn phòng. Những vật dụng được gia chủ lựa chọn kỹ càng, có màu sắc và kiểu dáng nhã nhặn giúp chúng nổi bật hơn trên tone màu trắng chủ đạo của căn nhà. Bạn có thể thấy sự tinh tế được thể hiện qua những chi tiết trang trí như bình hoa, kệ để đồ và đèn trang trí. Tuy không cầu kỳ, rườm rà song mang lại cảm giác hài hòa trong tổng thể. Mẫu nhà ống đẹp 3 tầng 4x12m Lối thiết kế không gian mở luôn phù hợp với các mẫu nhà ống hiện đại, không chỉ làm nổi bật vẻ đẹp của nội thất ngôi nhà mà còn tận dụng được triệt để diện tích sử dụng, tạo cảm giác thoáng đãng, tiện nghi. Khu vực bếp nấu và ăn uống liền kề với khu vực tiếp khách của gia đình, tạo nên sự liền mạch trong không gian, khiến cho ngôi nhà trông rộng rãi hơn diện tích thực tế. Gia chủ đã lựa chọn không trang trí hay bày biện quá nhiều, thay vào đó là tập trung đến sự tiện dụng với đầy đủ những thiết bị nội thất hiện đại, cao cấp nhất. Bộ bàn ăn 6 người vừa đủ cho nhu cầu sinh hoạt hàng ngày, vừa thuận tiện cho những dịp tiếp đón người thân hoặc bạn bè tới thăm. Gam màu trung tính nhẹ nhàng, phù hợp với gam trắng chủ đạo, mang đến cho ngôi nhà sự gọn gàng, cao cấp như gia chủ mong muốn. Mẫu nhà ống đẹp 3 tầng 4x12m Với khu vực sinh hoạt riêng tư là phòng ngủ, KTS đã khéo léo kết hợp sàn gỗ cùng giấy dán tường có họa tiết nghệ thuật, mang đến cảm giác vừa ấm cúng, vừa lãng mạn. Đối với những không gian riêng, bạn có thể thoải mái thể hiện gout thẩm mỹ của mình thông qua những món đồ nội thất cơ bản, hoặc màu sắc chủ đạo của căn phòng. Điều này sẽ giúp bạn cảm thấy thoải mái, thư giãn được nhiều hơn, có thể tái tạo năng lượng sau những giấc ngủ ngon. Mẫu nhà ống đẹp 3 tầng 4x12m Ở đây, KTS đã lựa chọn thiết kế bồn tắm đứng cho mẫu nhà 3 tầng này. Vừa đảm bảo tiện nghi trong sinh hoạt hàng ngày của các thành viên trong nhà, vừa có thể tạo ra nhiều diện tích sử dụng cho các không gian khác. Dù không quá lông lẫy song mẫu nhà ống 3 tầng đẹp 4x12m lại thể hiện được phong cách riêng của gia chủ, để ấn tượng cho nhiều người. Nếu bạn cần thêm thông tin về mẫu thiết kế trên, hoặc đang tìm kiếm ý tưởng cho kế hoạch xây dựng nhà cho gia đình sắp tới. Hãy liên hệ ngay với chúng tôi để nhận được tư vấn nhanh chóng và tận tình nhất. Xem thêm: Thiết kế nội thất phòng khách nhà ống 4m – 5m hiện đại Mọi nhu cầu xin mời liên hệ: CÔNG TY CỔ PHẦN THIẾT KẾ XÂY DỰNG BỘ BA – Địa chỉ: Số 5 Trương Công Định, P.14, Q.Tân Bình, Tp.HCM – Email: info.congtyboba@gmail.com – Điện thoại: 0283.811.9077 – Hotline: 0911.64.11.77 – Website: https://kientrucboba.com

Leave a Reply

Your email address will not be published. Required fields are marked *