Mẫu nhà ống đẹp 3 tầng rộng 5m hiện đại 2018

Ngoài nét đẹp kiến trúc hiện đại, phù hợp với xu thế các mẫu nhà ống đẹp 3 tầng rộng 5m còn được nhiều gia đình hiện nay ưu tiên lựa chọn bởi khả năng tiết kiệm diện tích và tối ưu công năng sử dụng cũng như đảm bảo độ thông thoáng tốt. Để cảm nhận điều này một cách rõ nét nhất mời bạn cùng chiêm ngưỡng các hình ảnh phối cảnh, thiết kế nội thất và bản vẽ mặt bằng mẫu nhà ống 3 tầng ngay dưới đây.

Phối cảnh mẫu nhà ống đẹp 3 tầng rộng 5m

Mau Nha Ong Dep 3 Tang Rong 5m
Mẫu nhà ống đẹp 3 tầng rộng 5m
Nổi bật hẳn giữa không gian phố thị là nét đẹp sang trọng, khỏe khoắn của mẫu nhà ống 3 tầng đẹp 5m. Đây là ngôi nhà phố được thiết kế theo phong cách kiến trúc hiện đại với tông màu trắng chủ đạo giúp điểm tô nét đẹp khang trang, thông thoáng. Màu nâu vàng được phối ở những thanh cột trang trú cùng với màu xám của gạch ốp ở tầng trệt được xem là điểm nhấn giúp tô điểm thêm nét cuốn hút, độc đáo cho mặt tiền nhà ống đẹp. Kiến trúc tổng thể được thiết kế khá vuông vức làm toát lên vẻ đẹp bề thế, vững chãi cho ngôi nhà.
Mau Nha Ong Dep 3 Tang Rong 5m 2
Phối cảnh mặt tiền nhà ống 3 tầng 5m
Ngoài sự hài hòa về tông màu và đường nét kiến trúc việc thiết kế, bố trí hệ thống cửa ra vào và cửa sổ rộng, linh hoạt cũng góp phần làm nên nét khang trang, thông thoáng, tạo nét đẹp chiều sâu cho ngôi nhà.

Nội thất bên trong mẫu nhà ống 3 tầng 5m

Không gian nội thất bên trong mẫu nhà ống 3 tầng rộng 5m cũng sang trọng và cuốn hút không kém, cụ thể:
Mau Nha Ong Dep 3 Tang Rong 5m 3
Phòng khách nhà ống 3 tầng 5m
Phòng khách được thiết kế đơn giản nhưng thể hiện được nét sang trọng, hiện đại. Màu trắng là tông màu chủ đạo của căn phòng nhưng khi kết hợp cùng ánh sáng màu vàng của đèn chiếu sáng thì không gian càng trở nên huyền ảo, ấm cúng. Bộ sofa đơn giản màu xám kết hợp cùng chiếc bàn gỗ tròn là một sự kết hợp rất hợp gu tạo nên một nét đẹp vừa hiện đại lại rất độc đáo, khác biệt.
Mau Nha Ong Dep 3 Tang Rong 5m 4
Phòng bếp nhà ống 3 tầng 5m
Bếp ăn được thiết kế rộng vừa phải, các đồ dùng nội thất được bài trí khoa học giúp làm toát lên vẻ đẹp khang trang, gọn gàng, sạch sẽ và cũng rất đỗi ấm cúng khi bước vào căn phòng.
Mau Nha Ong Dep 3 Tang Rong 5m 5
Phòng ngủ nhà ống 3 tầng 5m
Sang trọng, hiện đại, tiện nghi và thông thoáng chính là những mỹ từ thích hợp nhất để miêu tả nét đẹp của căn phòng này. Mọi thứ đều hòa quyện hết sức hài hòa, từ màu tường, ánh đèn cho đến các đồ dùng nội thất. Tất cả được thiết kế với mục đích tạo cho các thành viên trong gia đình một không gian nghỉ ngơi thư giãn tuyệt vời, giúp xua tan mọi áp lực, căng thẳng của cuộc sống.
Mau Nha Ong Dep 3 Tang Rong 5m 6
Phòng WC nhà ống 3 tầng 5m
Phòng vệ sinh thì được thiết kế khá rộng, tiện nghi và sạch sẽ, điều này chắc chắn sẽ giúp các thành viên trong gia đình cảm thấy hài lòng khi sử dụng.

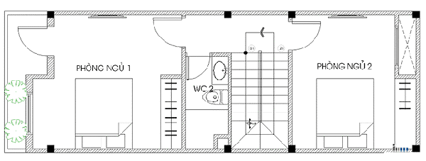
Bản vẽ mặt bằng thiết kế mẫu nhà ống đẹp 3 tầng 5m

Không chỉ cuốn hút bởi nét đẹp kiến trúc và nội thất khi tham khảo các bản vẽ mặt bằng thiết kế mẫu nhà ống đẹp 3 tầng 5m dưới đây bạn sẽ càng cảm nhận được rõ hơn sự tiện nghi và thông thoáng từ các phòng sinh hoạt trong ngôi nhà.
Ban Ve Mau Nha Ong Dep 3 Tang Rong 5m
Bản vẽ mặt bằng nhà ống 3 tầng 5m
Thật vậy, tầng trệt mẫu nhà phố đẹp được thiết kế và bố trí cực kì khoa học với 1 phòng khách, 1 phòng ăn & bếp và 1 phòng vệ sinh. Trong đó phòng khách được bố trí ở vị trí đầu tiên thẳng lối vào kế đến là cầu thang, tiếp đến là nhà bếp, phòng vệ sinh được bố trí ở giữa giúp tạo sự thuận tiện cho gia chủ cũng như khách ghé thăm cần sử dụng. Ban Ve Mau Nha Ong Dep 3 Tang Rong 5m 2 Nếu không gian tầng 1 là nơi dành riêng cho các hoạt động chung của gia đình cũng như tiếp đón khách thì tầng 2 sẽ là không gian dành riêng cho việc nghỉ ngơi, thư giãn của các thành viên trong gia đình với 2 phòng ngủ và  1 phòng vệ sinh. Trong đó 2 phòng ngủ được thiết kế hai bên, phòng vệ sinh được thiết kế ở giữa tạo sự tiện nghi cho việc sử dụng của gia chủ. Ban Ve Mau Nha Ong Dep 3 Tang Rong 5m 3 Tầng 3 sẽ là không gian dành cho việc nghỉ ngơi và tâm linh với 1 phòng ngủ, 1 phòng thơ và khu vực sân phơi rộng rãi, thoáng mát. Tóm lại mẫu nhà ống 3 tầng đẹp 5m là kiểu nhà thỏa mãn đầy đủ các tiêu chí hiện đại, sang trọng và tiện nghi, đặc biệt thích hợp với không gian phố thị hiện nay. >>>Bạn có thể tham khảo nhanh 20 mẫu mặt tiền nhà ống đẹp tinh tế của năm 2018.

Leave a Reply

Your email address will not be published. Required fields are marked *