Mẫu thiết kế biệt thự 200m2 mộc mạc mà cực kỳ tinh tế

Mẫu thiết kế biệt thự 200m2 hiện đại là một trong những dự án kiến trúc nhà đẹp Kiến trúc Bộ Ba muốn giới thiệu đến bạn đọc. Góp phần hình thành kho tàng ý tưởng phong phú để bạn đọc có thể tham khảo và lựa chọn những mẫu mã phù hợp. Khái niệm nhà ở những năm gần đây không chỉ dừng lại ở ý nghĩa là một nơi che nắng che mưa mà phải hội tụ đủ yếu tố công năng lẫn thẩm mỹ. Điều này đòi hỏi người làm kiến trúc ngoài việc tính toán những con số theo công thức để đảm bảo tính chất kết cấu bền vững còn phải có mắt nhìn nghệ thuật nâng cao giá trị thẩm mỹ của công trình, phục vụ nhu cầu được thưởng thức cái đẹp của mỗi gia đình. Công việc thiết kế kiến trúc không chỉ đơn giản là vẽ vời những ý tưởng trên mặt giấy như nhiều người vẫn nghĩ, thay vào đó kiến trúc sư phải có nhiều kinh nghiệm cọ xát thực tế, đảm bảo những ý tưởng thiết kế khi đưa vào quá trình triển khai phải thật chính xác, tối ưu và tiết kiệm nhất có thể. Sau đây là một trong những mẫu biệt thự hiện đại được cộng đồng đánh giá cao về độ tối ưu, mời bạn đọc cùng chúng tôi tham khảo phương án.

Mẫu thiết kế biệt thự 200m2

Mau Thiet Ke Biet Thu 200m2
Mẫu thiết kế biệt thự 200m2
Kiến trúc hiện đại của ngôi biệt thự 200m2 để lại ấn tượng sâu sắc ngay từ lần đầu quan sát, chất hiện đại trong cách phối màu, kết hợp vật liệu hoàn thiện và kiến trúc phi đối xứng là những điểm nổi bật tạo nên nét riêng cho công trình. Ở đây chúng ta không thấy những chi tiết trang trí phức tạp mà thay vào đó là sự tinh tế đến từ nguyên tắc tối giản, những khoảng tiến lùi được tính toán hợp lý đem lại những góc cạnh thanh thoát cho ngôi nhà, thể hiện một khối thống nhất và chắc chắn. Mau Thiet Ke Biet Thu 200m2 2 Gam màu ghi xám và nâu gỗ trầm mặc trước ánh đèn trở nên huyền bí, nêu bật những đường nét kiến trúc độc đáo của công trình.
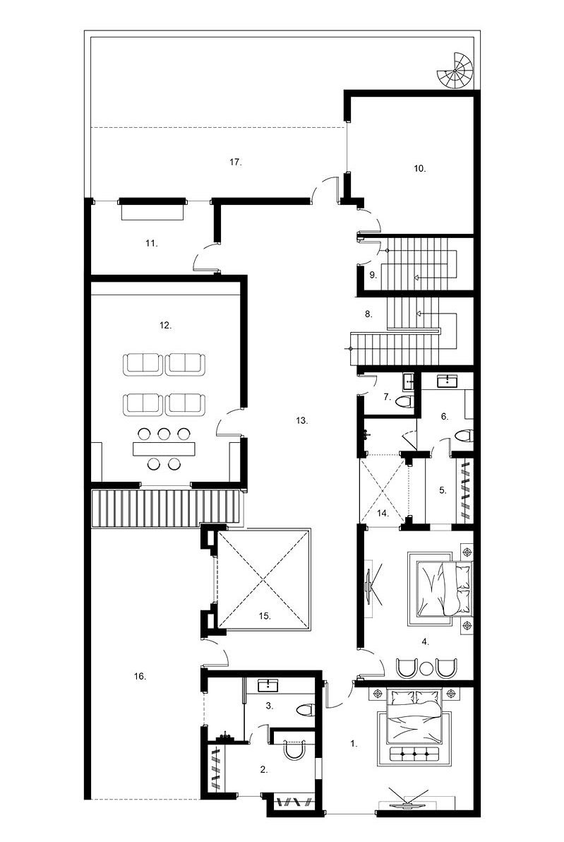
Ban Ve Mat Bang Mau Thiet Ke Biet Thu 200m2
Bản vẽ mặt bằng trệt biệt thự 200m2
Không chỉ riêng vẻ bề ngoài, mẫu biệt thự 200m2 còn có cách phân chia không gian chức năng phù hợp với lối sống hiện đại, áp dụng cách bố trí liên thông giữa phòng khách và bếp để tăng tối đa tính kết nối trong sinh hoạt gia đình. Chất liệu kính được kiến trúc sư bố trí xuyên suốt diện tích công trình để gia tăng khả năng lấy sáng, tạo những góc view đẹp ra quang cảnh xung quanh công trình. Ban Ve Mat Bang Mau Thiet Ke Biet Thu 200m2 2 Bên cạnh sự tập trung vào kiến trúc và bố trí không gian chức năng của ngôi biệt thự thì chi tiết sân vườn cũng được kiến trúc sư chú trọng. Diện tích mảnh đất không được sử dụng hoàn toàn cho công trình, thay vào đó màu xanh tự nhiên của cỏ cây, hoa lá giúp ngôi nhà trở nên thân thiện và gần gũi hơn, tạo sự cân bằng giữa tự nhiên và nhân tạo. 200m2 là diện tích khá rộng, đặc biệt phù hợp để kiến tạo nên những công trình kiến trúc biệt thự độc đáo và sáng tạo với đa dạng phong cách từ hiện đại cho đến cổ điển. Dù là bất kỳ hình thức nào, Kiến trúc Bộ Ba vẫn sẽ có những phương án tối ưu nhất gửi đến bạn đọc. Hotline 0911.64.11.77 (Mr. Kiệt) và hòm thư info.congtyboba@gmail.com luôn sẵn sàng tiếp nhận sự quan tâm từ bạn đọc và quý khách hàng.

Leave a Reply

Your email address will not be published. Required fields are marked *