Mẫu thiết kế biệt thự biển vách kính kết hợp gỗ giải nhiệt ngày hè

Mẫu thiết kế biệt thự biển vách kính kết hợp gỗ giải nhiệt ngày hè là phương án nghỉ dưỡng tuyệt vời cho những cặp đôi và gia đình trẻ. Gần 80% vật liệu của ngôi biệt thự biển là gỗ từ cổng vào là hàng rào đến mái nhà, kết cấu sườn, khung cửa và ván sàn. Sự đồng nhất về phong cách đem đến sự bình dị, dân dã cho mẫu biệt thự mini. Gỗ lại có tính năng giải nhiệt làm dịu đi cái oi bức của nắng biển ban trưa rất hiệu quả.
Mau Thiet Ke Biet Thu Bien Vach Kinh Ket Hop Go
Biệt thự biển phong cách mộc giải nhiệt ngày hè. Lối vào biệt thự biển với hàng chuối và cau kiểng trước cổng đậm chất thôn dã yên bình gây sự hứng thú cho nhiều du khách ngoại quốc.
Mặt tiền biệt thự biển là khoảng sân vườn mát mẻ với mảng cây cối của vùng miền. Từ mặt tiền dẫn vào khuôn viên biệt thự 2 gian. Lối hành lang bên hông nhà có mái hiên che chắn, phía dưới dành cho khách du lịch giải trí, nghỉ mát với view hướng biển thông thoáng, lót đá nhám tăng độ ma sát để đảm bảo an toàn bởi sau mẫu biệt thự hiện đại là khu hồ bơi đẹp mắt.
Mau Thiet Ke Biet Thu Bien Vach Kinh Ket Hop Go 2
Biệt thự biển với gian nhà ngăn đôi phân chia các dãy phòng của du khách. Mặt tiền biệt thự hướng biển tạo khoảng không gian thanh bình, riêng tư cho du khách với mảng tường trở thành vách ngăn. Phía trước mỗi phòng đều có ghế đẩu cùng chiếc bàn con bằng gỗ thích hợp cho du khách ngắm cảnh, thư giãn hít thở không khí trong lành vừa nhâm nhi tách cà phê sáng.
Mau Thiet Ke Biet Thu Bien Vach Kinh Ket Hop Go 3 Mau Thiet Ke Biet Thu Bien Vach Kinh Ket Hop Go 4 Mau Thiet Ke Biet Thu Bien Vach Kinh Ket Hop Go 5 Mau Thiet Ke Biet Thu Bien Vach Kinh Ket Hop Go 6 Mau Thiet Ke Biet Thu Bien Vach Kinh Ket Hop Go 7
Mau Thiet Ke Biet Thu Bien Vach Kinh Ket Hop Go 8
Bên hông và phía sau biệt thự biển với view hướng biển lãng mạn, tầm nhìn thông thoáng kết hợp với công năng giải trí, thư giãn lý tưởng. Bể bơi mát lạnh xua tan đi nắng nóng và bao mệt mỏi, giúp du khách tận hưởng trọn vẹn niềm vui và sự thanh thản trong chuyến nghỉ mát.
Mau Thiet Ke Biet Thu Bien Vach Kinh Ket Hop Go 9
Mau Thiet Ke Biet Thu Bien Vach Kinh Ket Hop Go 10
Mặt hồ trong xanh lăn tăn sóng nhân tạo như thổi dư vị biển từ phía bên kia khuôn viên hòa vào không gian trong lành thư thái của biệt thự biển. Gió và nắng biển cũng từ đó men theo dấu chân du khách khỏa lấp cả khoảng trời nghỉ dưỡng.
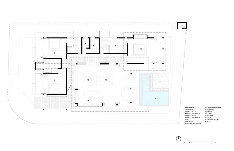
Vì diện tích biệt thự biển khá rộng lại mang đậm chất bungallow nên gia chủ đã dành một gian cho khách du lịch thuê, gian nhà còn lại trở thành không gian sống của gia đình. Khu vực trước gồm các phòng dành cho khách cùng phòng sinh hoạt lớn, chỗ giặt ủi… Phía sau gồm phòng khách, bếp, nơi ăn uống và phòng ngủ của gia chủ. Căn bếp vừa phục vụ cho gia đình vừa phục vụ cho khách du lịch khi có nhu cầu ăn tại biệt thự.
Mau Thiet Ke Biet Thu Bien Vach Kinh Ket Hop Go 11
Phòng sinh hoạt lớn dành cho khách và gia đình được thiết kế kết hợp nhiều công năng trong một không gian từ phòng khách đến bếp và khu ăn uống. Các khung cửa bằng gỗ được lắp kính trong suốt tạo cho không gian bên trong của biệt thự sáng sủa, rộng mở và ngập tràn ánh nắng tự nhiên.
Mau Thiet Ke Biet Thu Bien Vach Kinh Ket Hop Go 12
Nhà tắm biệt thự biển vẫn hài hòa trong phong cách Mộc tổng thể, đầy đủ tiện ích. Với không gian mở từ phía trên, phần trần là những thanh gỗ được đan khít có kẽ hở nên không bị ngộp, có thể đón gió trời tự nhiên.
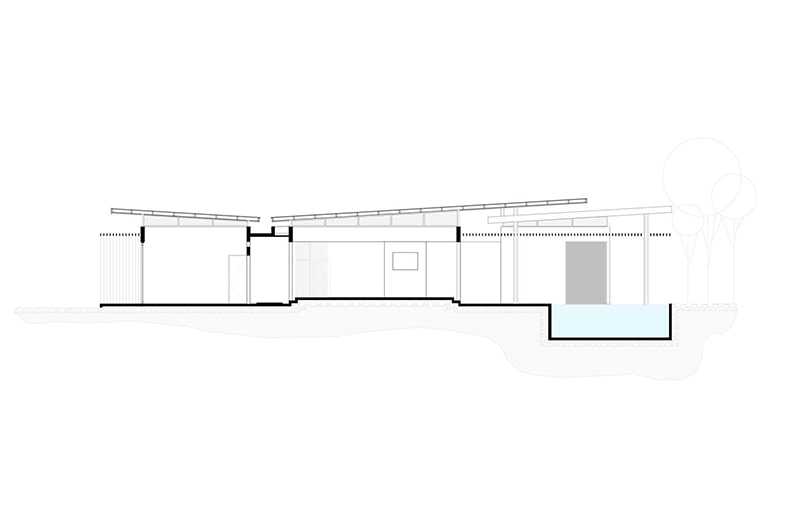
Bản vẽ chi tiết biệt thự biển: Mau Thiet Ke Biet Thu Bien Vach Kinh Ket Hop Go 13 Mau Thiet Ke Biet Thu Bien Vach Kinh Ket Hop Go 14 Mau Thiet Ke Biet Thu Bien Vach Kinh Ket Hop Go 15 Mau Thiet Ke Biet Thu Bien Vach Kinh Ket Hop Go 16 Nếu bạn đang có ý định xây dựng biệt thự biển nhưng còn quá nhiều vướng mắc trong quy trình thực hiện từ khâu thiết kế đến thi công hãy liên hệ với chúng tôi để được tư vấn miễn phí trọn gói cùng các hạng mục khác. Xem thêm: Ảnh thực tế 10 mẫu biệt thự nhà vườn 2 tầng kiểu Thái đẹp

Leave a Reply

Your email address will not be published. Required fields are marked *