Mẫu thiết kế biệt thự vùng thảo nguyên phong cách mộc
Kiến trúc Bộ Ba xin giới thiệu mẫu thiết kế biệt thự vùng thảo nguyên phong cách mộc – Kiến tạo không gian sống trên vùng thảo nguyên đất rộng là dịp để các KTS thỏa sức với các ý tưởng đột phá khi khai thác công năng mà không bị vướng bận về mặt diện tích. Rời xa chốn đô thị náo nhiệt, đông đúc với nhịp sống tất bật đất chật với những dãy nhà san sát chen chúc, tìm về với miền sơn cước bạt ngàn để hít thở bầu không khí thiên nhiên trong lành.
Mẫu thiết kế biệt thự vùng thảo nguyên phong cách mộc
Khuôn viên biệt thự với diện gần 1000m2 bao gồm cả sân vườn và nhà ở. Vị trí địa hình của mảnh đất là sườn thoai thoải nên phần mặt tiền tạo độ dốc nâng phần sân và nhà đi lên từ bờ rào là bức tường đá vững chãi. Phần dốc là bãi cỏ trải dài ra bên ngoài tạo nên sự hài hòa. Phía trước nhà có trồng hàng dừa để tạo bóng râm bởi vùng cao nguyên thời tiết có phần khắc nghiệt hơn đồng bằng: sáng trưa nắng gắt, chiều tối phủ sương lạnh.
Mẫu thiết kế biệt thự vùng thảo nguyên phong cách mộc
Biệt thự thảo nguyên sử dụng vật liệu chủ đạo là gỗ. Bên cạnh đó kết hợp với đá và bê tông trần đều là những vật liệu tự nhiên, mộc mạc ở địa phương. Mật độ nhà trên cao nguyên thưa thớt nên mái bằng là sự lựa chọn thích hợp để tránh thiên tai. Mái của biệt thự được gia cố và ốp gỗ ở mặt trong vừa sang trọng lại xen lẫn nét bình dị. Dù là mảng sân vườn hay phần công trình đều có kết cấu phân vùng rõ rệt tương ứng với chức năng của mỗi khu vực. Bạn sẽ phải kinh ngạc khi tham quan mẫu biệt thự vùng thảo nguyên phong cách mộc này.
Điểm ấn tượng đập vào mắt đầu tiên khi được chiêm ngưỡng căn biệt thự là phần sân vườn rộng lớn được thiết kế và xây dựng chu đáo. Gia chủ là một người rất yêu thiên nhiên và sáng tạo nên một bức tranh phong cảnh hữu tình sống động ngay trong khuôn viên nhà mình.
Chưa vào bên trong biệt thự, ta đã choáng ngộp với khung cảnh bên ngoài với cát trắng, bãi cỏ xanh, hàng cọ quanh hồ cá. Tuy chiếm diện tích không nhiều, nhưng phần tiểu cảnh quanh hồ như một lát cắt thu nhỏ của thiên nhiên trù phú đâu đây trong vùng thảo nguyên rộng lớn này. Khu vực có bãi cát trắng được bố trí là nơi thư giãn vào mỗi buổi chiều tà mát rượi. Bên hông mảnh vườn biệt thự thảo nguyên là gian bếp dành cho những dịp họp mặt cuối tuần cùng người thân và bạn bè của gia chủ.
Bên hông nhà là lối cầu thang dẫn lên tầng trên. Dù đất khá “thoải mái” nhưng gia chủ cũng khá hứng thú trong việc phát triển chiều cao của biệt thự. Biệt thự cao nguyên gồm 1 trệt và 1 gác lửng và 1 lầu. Mỗi tầng đều có công năng riêng biệt đáp ứng khá đầy đủ nhu cầu sống thiết yếu.
Bên ngoài gác lửng là khuôn viên nghỉ mát lý tưởng với hồ bơi bao quanh cùng hàng ghế tắm nắng được thiết kế như khu resort. Gia chủ và các thành viên trong nhà không cần phải đi đâu xa vào những kì nghỉ hè mà ngay tại nhà cũng có thể tận hưởng được cảm giác đi du lịch.
Phía ngoài ở bên hông tầng 1 của biệt thự là bãi gửi xe tương đối lớn gồm khoảnh sân lộ thiên và phần có mái hiên được tráng xi măng và lót gạch không nung. Khách khứa của gia chủ có thể yên tâm về trạm dừng chân tiện nghi cho người lẫn xe khi ở biệt thự thảo nguyên.
Nội thất biệt thự vùng thảo nguyên tạo được dấu ấn riêng không pha lẫn: phong cách mộc đồng nội, hoài cổ nhưng vẫn có dáng dấp của nếp sống hiện đại, tinh tế qua cách bài trí, sắp đặt các vật dụng.
Không gian trắng xóa bốn bề của những mảng tường làm nổi bật nội thất biệt thự. Phòng khách và nhà ăn biệt thự sử dụng chung một không gian nhưng có sự phân cách thông qua màu sắc và kiểu dáng bàn ghế. Giếng trời biệt thự được đặt ngay lối cầu thang dẫn lên các tầng với khoảnh vườn xanh tươi bên dưới là sự kết hợp đầy sáng tạo và thông minh, làm cho chức năng lọc gió và khí tăng lên gấp bội, mang đến không khí trong lành cho ngôi nhà.
Gian bếp biệt thự hướng vườn hứng ánh sáng mặt trời tự nhiên nên vô cùng thông thoáng. Từ kiểu dáng bàn ghế đến cách sắp đặt không gian bếp đã trở thành quán cà phê mini tiện lợi, thích hợp cho những buổi tiệc trà sáng và tối.
Tầng gác lửng và tầng thượng là không gian sinh hoạt cá nhân gồm các phòng ngủ và nhà tắm. Khu vực vệ sinh được phân thành nhà tắm cho trẻ con và nhà tắm cho người lớn. Mỗi khu có lối thiết kế và sắp đặt khác nhau phù hợp với thị hiếu và nhu cầu của từng độ tuổi. Nhà tắm cho trẻ nhỏ với nhiều màu sắc tươi sáng và vật dụng nhỏ xinh, diện tích vừa phải, kệ gỗ. Nhà tắm dành cho người lớn màu sắc trang nhã và đơn giản.
Phòng ngủ hướng vườn với lối đi ra khoảng ban công tạo nên không gian mở, hài hòa cùng thiên nhiên. Nội thất phòng ngủ biệt thự hạn chế đồ đạc để không gian tinh gọn, phục vụ nhu cầu thư giãn tạo nên những giấc ngủ sâu cho gia chủ.
Quầy rượu trong biệt thự vùng thảo nguyên phong cách mộc được thiết kế theo lối cổ kính, quý tộc với mảng tường đá và bộ ghế sofa gân màu nâu sậm.
Biệt thự vùng thảo nguyên phong cách mộc về đêm với ánh đèn vàng được lắp đặt ở giàn mái hiên làm nổi bật không gian tráng lệ mà bình dị. Cả một vùng đồi núi bao la như hút về không gian sống tiện nghi, không cầu kì nhưng lại toát lên vẻ sang trọng khác lạ.
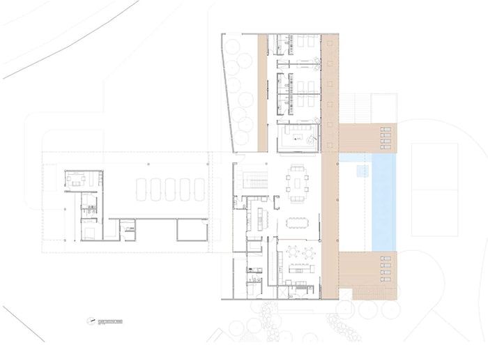
Bản vẽ chi tiết mẫu thiết kế biệt thự vùng thảo nguyên phong cách mộc:
Công trình : CR Residence / Studio design :Padovani Arquitetos Associados
Kiến trúc sư: Padovani Arquitetos + Associados
Vị trí: Joaquim Egídio, Braxin
Kiến trúc sư phụ trách: Lucas Padovani
Năm hoàn thành: 2016
Cùng Kiến trúc Bộ Ba tạo tác những đường nét sinh động cho cuộc sống của bạn.
Mọi chi tiết cần được tư vấn về thiết kế và xây dựng, xin liên hệ:Công ty Cổ phần Thiết kế Xây dựng Bộ BaĐịa chỉ: Số 5 Trương Công Định – P.14 – Q.Tân Bình – Tp.HCM Hotline: 0911.64.11.77Website: https://kientrucboba.com/Email: info.congtyboba@gmail.com