Mẫu thiết kế nhà 2 tầng 8x10m 3 bản vẽ bố trí mặt bằng

Gửi bạn đọc mẫu nhà 2 tầng 8x10m với 3 phương án bố trí mặt bằng bám sát phong cách thiết kế kiến trúc nhà ở hiện đại, mang đến không gian sống tiện lợi cho các hoạt động sinh hoạt và nhu cầu thiết yếu của gia đình.

THÊM SỨC SỐNG KHI SỰ ĐỒNG ĐIỆU LÊN NGÔI CHO MẪU NHÀ 2 TẦNG 8x10m

Với nhịp sống hiện đại đầy bộn bề, mong muốn có nơi dừng chân sau một ngày làm việc vất vả là nhu cầu thiết yếu của mỗi người. Không chỉ là nơi dừng chân tạm trú, ngôi nhà còn là chốn gắn kết bền vững, đong đầy yêu thương của các thành viên trong gia đình. Vì vậy, việc xây dựng và sở hữu một ngôi nhà lý tưởng phù hợp với điều kiện kinh tế và nhu cầu của mỗi gia chủ là vấn đề quan trọng. Không gian ngoại thất sáng sủa
Mau Nha 2 Tang 8x10m
Mẫu thiết kế nhà 2 tầng 8x10m
Mẫu biệt thự đẹp tận dụng hầu như toàn bộ diện tích cho khuôn viên kiến trúc nên không có khoảng sân vườn phía trước. Mặt tiền là bậc tam cấp dẫn vào cửa chính. Với kết cấu 2 tầng gồm các khối hộp trước và sau tạo thành 2 gian, phần bên chính diện được trưng dụng thành nhà xe với mảng gạch nung ốp tường pha chất mộc nổi bật trong tổng thể hiện đại, sáng sủa trên nền trắng chủ đạo. Sử dụng hình thức mái thái xanh dương mát mẻ, phân bổ trước sau làm ánh sáng bị phân tán nên ngôi nhà không bị hắt nắng. Trên lầu có ban công rộng vừa phải bố trí cây xanh thanh lọc không khí hiệu quả. Khu sinh hoạt tầng trệt ấm cúng Bước vào cửa chính là phòng khách được thiết kế với sàn gỗ mộc hè mát đông ấm. Bộ ghế sofa màu xám trung tính trở thành điểm nhấn được đặt ở vị trí trung tâm. Dưới sàn là tấm thảm lông, đặt trên đó là chiếc bàn tiếp khách 2 ngăn tiện lợi có thể đóng mở linh hoạt. Ở mảng tường gỗ là những bức tranh trắng đen tô thêm sự hiện đại cho phong cách chung của mẫu biệt thự 2 tầng.
Noi That Mau Nha 2 Tang 8x10m
Phòng khách với nội thất sang trọng và hài hòa nhưng không kém phần nổi bật
Khu sinh hoạt chung ở tầng trệt phát triển theo chiều sâu mở ra khu vực bếp thông thoáng, tiện nghi. Chất liệu gỗ phối hợp cùng nội thất hiện đại của sắt thép tạo nên một tổng thể hài hòa ở mọi khu chức năng không chỉ riêng nhà bếp.
Noi That Mau Nha 2 Tang 8x10m 2
Khu bếp thoáng rộng mở ra khoảng sân sau ngập tràn ánh sáng
Ở góc đối diện là mảng trưng bày vật dụng bếp độc đáo với màu tủ gỗ xanh dương tạo điểm nhấn và đồng bộ với màu của mái Thái khu ngoại thất.
Noi That Mau Nha 2 Tang 8x10m 3
Một góc bếp sang trọng nhưng không quá cầu kì trong ngôi nhà chật hẹp
Chốn riêng tư sang trọng đồng điệu về bố cục và màu sắc Nếu khu vực sinh hoạt chung mộc mạc, trung tính tạo sự kết nối giữa các thành viên thì tầng trên là khoảng không gian dành cho cá nhân với sự tinh tế đầy chuẩn mực. Phòng ngủ tạo nên sự thư giãn tuyệt đối với gam màu trung tính từ màu thảm lót sàn, mảng gỗ và màn cửa buông phủ trên nền tường trắng thanh thoát. Mảng tường cách điệu đầu giường với hiệu ứng ánh sáng trở thành gây ấn tượng và thu hút. Ánh sáng vàng huyền ảo trong phòng ngủ vừa đủ đưa ta vào giấc ngủ bình yên .
Noi That Mau Nha 2 Tang 8x10m 4
Phòng ngủ lý tưởng hài hòa sẽ mang đến những giấc ngủ ngon, không mộng mị
Khu nhà vệ sinh đồng điệu với phòng ngủ về màu sắc và bố cục: đơn giản mà tiện nghi tạo nên sự sang trọng cho phong cách Hiện đại đầy tinh tế của không gian nhà 2 tầng. Không quá rộng rãi nhưng vừa đủ cho mọi sinh hoạt vệ sinh cá nhân trong khuôn viên biệt thự 2 mini tầng khiêm tốn. Thiên nhiên cũng được đưa vào với những mảng xanh tươi của những bụi cây được chăm tỉa sạch sẽ.
Noi That Mau Nha 2 Tang 8x10m 5
Nhà vệ sinh đầy đủ tiện nghi, chật hẹp nhưng không ngột ngạt
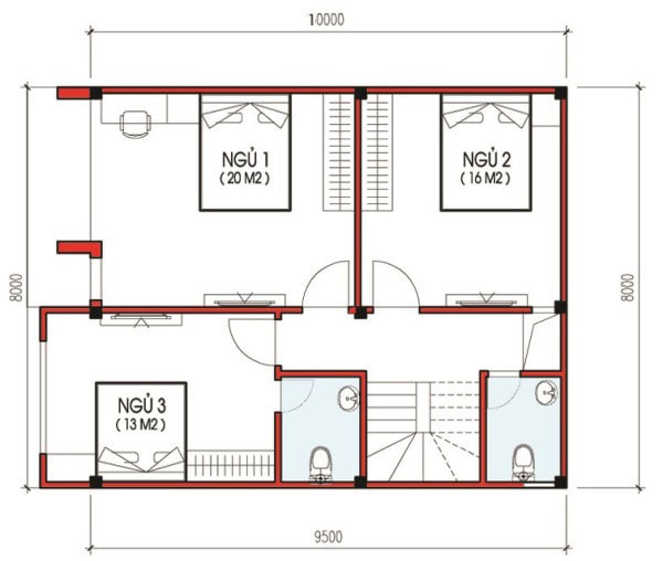
Bản thiết kế chi tiết mẫu nhà 2 tầng 8x10m
Bản vẽ mẫu nhà 2 tầng 8x10m
Bản vẽ mẫu nhà 2 tầng 8x10m – Phương án 1
Ban Ve Mau Nha 2 Tang 8x10m 2 Ban Ve Mau Nha 2 Tang 8x10m 3
Ban Ve Mau Nha 2 Tang 8x10m 4
Bản vẽ mẫu nhà 2 tầng 8x10m – Phương án 2
Ban Ve Mau Nha 2 Tang 8x10m 5 Ban Ve Mau Nha 2 Tang 8x10m 6
Ban Ve Mau Nha 2 Tang 8x10m 7
Bản vẽ mẫu nhà 2 tầng 8x10m – Phương án 3
Ban Ve Mau Nha 2 Tang 8x10m 8 Cùng Kiến trúc Bộ Ba tạo tác những đường nét sinh động cho cuộc sống của bạn. Mọi chi tiết cần được tư vấn về thiết kế và xây dựng, xin liên hệ: Công ty Cổ phần Thiết kế Xây dựng Bộ Ba Add: Số 5 Trương Công Định – P.14 – Q.Tân Bình – Tp.HCM Hotline: 0911.64.11.77 Website: https://kientrucboba.com/ Email: info.congtyboba@gmail.com

Leave a Reply

Your email address will not be published. Required fields are marked *