Mẫu thiết kế nhà 8x12m 3 tầng tân cổ điển

Mẫu thiết kế nhà 8x12m 3 tầng mang phong cách tân cổ điển là sự giao thoa hài hòa giữa 2 phong cách hiện đại và cổ điển. Thông qua kiến trúc ngôi nhà có thể thấy gia chủ là người yêu cái đẹp, muốn mang vào và thưởng thức vẻ đẹp hoài cổ bên cạnh sự tiện nghi của nhịp sống hiện đại.

Mẫu thiết kế nhà 8x12m

Với lợi thế chiều rộng lên đến 8m nên kiến trúc ngôi nhà được chia thành 2 gian. Mặt tiền nhiều cửa cùng các mái được bố trí nhấn nhá thanh thoát và sang trọng.
Mau Nha 8x12m
Mẫu thiết kế nhà 8x12m
Tông màu vàng nhạt tôn lên nét sang trọng cho khối kiến trúc được kiến trúc sư ứng dụng theo sở thích của gia chủ. Kết hợp cùng hệ cửa gỗ mộc mạc kèm mặt kính uốn cong thanh thoát, mẫu biệt thự đẹp mang đậm hơi thở thân thuộc và ấm cúng của những ngôi nhà truyền thống bên cạnh giá trị thẩm mỹ tinh tế. Với nhu cầu thưởng thức cái đẹp trọn vẹn, gia chủ muốn không gian nội thất tiếp nối ngoại thất với phong cách tân cổ điển, đáp ứng nhu cầu nghỉ ngơi sinh hoạt tiện nghi nhưng cũng đồng thời toát lên vẻ đẹp sang trọng.
Noi That Mau Nha 8x12m
Nội thất mẫu nhà 8x12m
Phòng khách với lượng ánh sáng tự nhiên dồi dào được cản lọc qua bức rèm cùng tone màu mang đến hiệu ứng hết sức độc đáo trước bộ bàn ghế sofa kiểu dáng sang trọng, mảng tường được lắp đặt hệ thống đèn led âm cùng giấy dán tường họa tiết cách điệu, ngoài ra 2 bức tranh nghệ thuật treo tường cũng là điểm nhấn ấn tượng. Không thể phủ nhận công dụng to lớn của đèn trần trong việc trang trí làm đẹp cho gian phòng khách, đặc biệt đối với phong cách cổ điển và tân cổ điển thì kiểu dáng tinh tế của những chiếc đèn trần luôn đóng vai trò cực kỳ quan trọng. Noi That Mau Nha 8x12m 2 Vật liệu gỗ mang đến bầu không khí ấm áp cho gian bếp cùng những chi tiết chế tác tinh xảo, mỗi một chiếc ghế là một tác phẩm nghệ thuật hoàn hảo. Noi That Mau Nha 8x12m 3 Không khí thư giãn được kiến trúc sư mang vào không gian phòng sinh hoạt chung với hệ thống tiểu cảnh xanh mát, màu sắc êm dịu là nơi đọc sách, trò chuyện lý tưởng cho các thành viên trong gia đình. Noi That Mau Nha 8x12m 4 Noi That Mau Nha 8x12m 5 Đề cao tiêu chí tinh giản, nhẹ nhàng nhưng phòng ngủ không vì thế mà trở nên đơn điệu, kiến trúc sư đã mang hơi thở sang trọng và xa hoa vào phòng ngủ bằng cách bổ sung họa tiết vào nhiều chi tiết. Tông màu nhẹ nhàng được sử dụng cho các phòng ngủ mang đến sự thư giãn tối đa và phù hợp sở thích của mỗi thành viên. Noi That Mau Nha 8x12m 6 Chất gỗ mang đến không khí trầm ấm cho gian phòng thờ.

Bản vẽ mặt bằng mẫu nhà 8x12m

Ban Ve Tret Mau Nha 8x12m
Bản vẽ mặt bằng mẫu nhà 8x12m
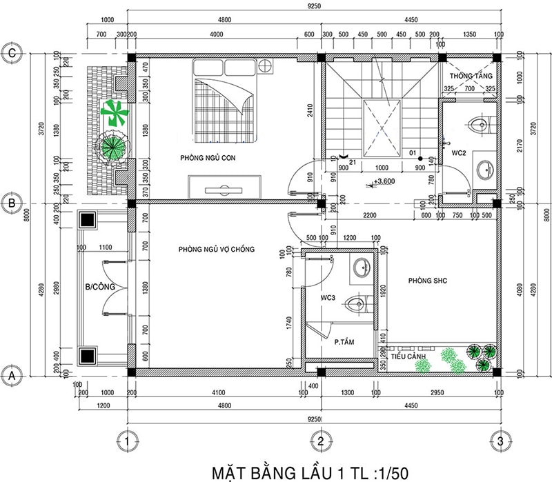
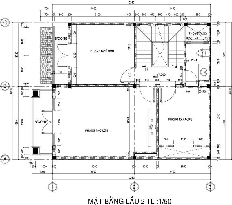
Tầng trệt được chia làm 2 không gian chính, một bố trí gara ô tô, phần còn lại dành cho không gian sinh hoạt chung bao gồm phòng khách và bếp kết hợp phòng ăn có diện tích khá thoải mái, mọi hoạt động sinh hoạt và kết nối rất tiện lợi. Phòng vệ sinh và cầu thang được dịch chuyển sang cùng phía gara không làm ảnh hưởng đến sự thông thoáng giữa phòng khách và bếp, thiết kế tách biệt giúp các hoạt động vệ sinh cá nhân tiện lợi và kín đáo hơn. Ban Ve Tret Mau Nha 8x12m 2 Trên tầng 2 được bố trí phòng sinh hoạt chung tạo góc thư giãn cho các thành viên cùng 2 phòng ngủ, trong đó phòng ngủ master của vợ chồng gia chủ có diện tích khá rộng kèm WC riêng đảm bảo tính riêng tư và tiện lợi trong sinh hoạt, 1 phòng WC được bố trí cạnh vị trí cầu thang, cùng trục với WC bên dưới trệt. Ban Ve Tret Mau Nha 8x12m 3 Tầng 3 vẫn giữ bố cục của tầng 2, thay vào vị trí phòng ngủ master là phòng thờ, phòng sinh hoạt chung là phòng karaoke. Ban Ve Tret Mau Nha 8x12m 4 Phòng giặt ủi và sân phơi được bố trí ở mặt bằng sân thượng của ngôi nhà như những ngôi nhà khác, tận dụng lượng gió và sáng tự nhiên. >>>Xem thêm: mẫu biệt thự phố 10x20m Mẫu thiết kế nhà 8x12m tân cổ điển là phương án biệt thự phố tối ưu, đáp ứng nhu cầu không gian sinh hoạt, nghỉ ngơi trọn vẹn cùng nét thẩm mỹ tinh tế mà nhiều gia đình Việt ưa thích.
Công ty Cổ phần Thiết kế Xây dựng Bộ Ba chuyên tư vấn thiết kế công trình nhà phố – biệt thự cao cấp sẵn sàng tiếp nhận và giải đáp nhu cầu tư vấn thiết kế từ quý bạn đọc, quý khách hàng gần xa. Xin mời liên hệ hotline 0911.64.11.77 hoặc đến trực tiếp văn phòng theo địa chỉ số 05 Trương Công Định – P.14 – Q.Tân Bình – Tp.HCM để trao đổi cùng kiến trúc sư.

Leave a Reply

Your email address will not be published. Required fields are marked *