Mẫu thiết kế nhà phố 6x10m 7 tầng hiện đại cho gia đình nhiều thế hệ

Kiến trúc Bộ Ba xin giới thiệu mẫu nhà phố hiện đại 6x10m với nhiều không gian nội thất đa sắc. Nhà phố hiện đại với nhiều dự án cách tân khai thác tối đa diện tích bề mặt và còn tối ưu không gian bên trong. Những lối kiến trúc độc đáo cũng từ đó ra đời, đáp ứng nhu cầu sống tiện nghi và tinh tế trong thời buổi công nghệ hóa.

Nhà phố hiện đại 6x10m 7 tầng cho gia đình nhiều thế hệ

Không gian đa sắc thái với nội thất tinh tế Đây là dự án nhà phố do công ty thiết kế MKCA phụ trách thực hiện. Nhà phố là một công trình kiến trúc 7 tầng đã được làm mới về nội thất và kết cấu với các mảng kính được lắp đặt lấy sáng cho không gian bên trong kèm theo việc khai thác khoảng không gian tầng thượng.
Mau Thiet Ke Nha Pho 6x10m 7 Tang Hien Dai
Mẫu thiết kế nhà phố 6x10m 7 tầng hiện đại cho gia đình nhiều thế hệ
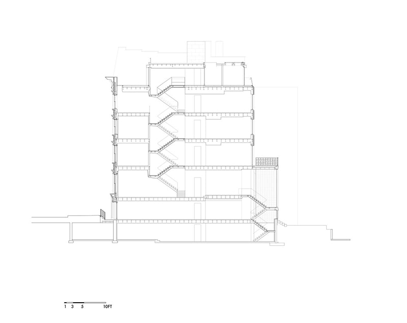
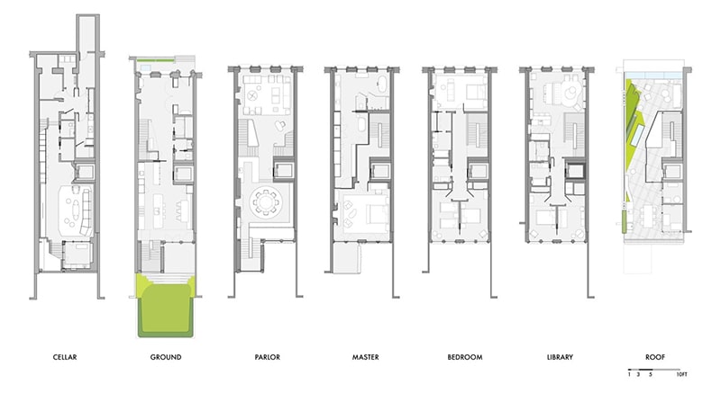
Mau Thiet Ke Nha Pho 6x10m 7 Tang Hien Dai 2 Bên ngoài nhà phố là một khu vườn thẳng đứng với hệ thực vật rừng nguyên sinh xanh mát đang sinh sôi và phát triển đặc biệt là giống cây leo đang phủ rợp ở mặt tiền phía sau. Bức tường màu xanh lá cây này được thiết kế bởi sự hợp tác của các nhà thực vật học bảo tồn từ Đại học bang New York (SUNY). Mau Thiet Ke Nha Pho 6x10m 7 Tang Hien Dai 3 Nhà phố được hình thành như một căn hộ gia đình trong không gian đủ đầy các công năng từ sinh hoạt đến giải trí ở quy mô lớn. Mẫu nhà phố được tổ chức xung quanh sự lưu thông đa hướng và đa cấp, là một công trình khá đồ sộ với sự thông minh đầy sáng tạo của đội ngũ kiến trúc sư MKCA. Mau Thiet Ke Nha Pho 6x10m 7 Tang Hien Dai Mau Thiet Ke Nha Pho 6x10m 7 Tang Hien Dai 5 Ngoài ra, các kiến trúc sư còn bổ sung thêm bô phận chuyển tiếp giữa các tầng là lối đi cầu thang với các bậc và tay vịn gỗ, lan can bên hông là những thanh đồng mỏng được đan bện chéo cách điệu, trải dài toàn bộ chiều cao của ngôi nhà. Mau Thiet Ke Nha Pho 6x10m 7 Tang Hien Dai 6 Mau Thiet Ke Nha Pho 6x10m 7 Tang Hien Dai 7 Thêm một cầu thang phía sau nhà phố có công năng kết nối một phòng ăn, nhà bếp, và tầng hầm với một phòng chờ và hầm rượu. Nó được bao quanh bởi gạch đất nung kèm với khung kính trên các bức tường và có các bước khối đá vôi. Bên cạnh đó, phần thang máy và cửa sổ cao lên gấp đôi như một khoảng nâng cấp sau nhà để không gian trở nên rộng rãi. Mau Thiet Ke Nha Pho 6x10m 7 Tang Hien Dai 8 Mau Thiet Ke Nha Pho 6x10m 7 Tang Hien Dai 9 Mau Thiet Ke Nha Pho 6x10m 7 Tang Hien Dai 10 Nhà phố được thiết kế để tạo nên sự cân bằng giữa nét truyền thống và hiện đại thông qua nội thất. Gam màu trắng chủ đạo cùng đường nét tạo hình đa sắc thái ở mỗi không gian tạo nên một bối cảnh với các chi tiết hiện đai, tinh tế đến bất ngờ. Điều này được thể hiện trong nhà phố chủ yếu nhấn mạnh vào sự đặc biệt của tính thủ công tinh xảo, được tăng cường bởi các phương pháp kỹ thuật số cho thiết kế, phối hợp cùng sự kết nối liên thông giữa các không gian. Mau Thiet Ke Nha Pho 6x10m 7 Tang Hien Dai 11 Phòng khách mẫu thiết kế nhà đẹp có một tác phẩm coban và nhôm mở rộng của nghệ sĩ Yuzu Ono treo trên một lò sưởi bằng đá cẩm thạch trắng. Gần đó là một chiếc bàn viết màu xám tro bằng gỗ của nhà điêu khắc Christopher Kurtz, và một thiết kế pha tạp của họa sĩ dệt Dana Barnes trên sàn nhà. Mau Thiet Ke Nha Pho 6x10m 7 Tang Hien Dai 12 Mau Thiet Ke Nha Pho 6x10m 7 Tang Hien Dai 13 Mau Thiet Ke Nha Pho 6x10m 7 Tang Hien Dai 14 Kurtz cũng thiết kế các ghế ăn, trong đó bao quanh một chiếc bàn cổ điển của nhà thiết kế Poul Kjaerholm giữa thế kỷ. Nhà thiết kế ánh sáng Bec Brittain đã tạo ra đèn chùm trong phòng ăn và sconces trong phòng tắm chính. Mau Thiet Ke Nha Pho 6x10m 7 Tang Hien Dai 15 Nhà phố được xây dựng bằng cách sử dụng kết cấu thép và bê tông, mở rộng diện tích của tòa nhà lên 892 mét vuông (tính theo độ cao), cải thiện việc lưu thông đón gió mát và ánh sáng tự nhiên. Lúc trước, nhà phố là kiến trúc tổng thể của 17 căn hộ và hiện nay được cải tạo và xây dựng lại thành không gian sống của một gia đình gồm có 7 tầng và 5 phòng ngủ. Mau Thiet Ke Nha Pho 6x10m 7 Tang Hien Dai 16 Mỗi phòng ngủ đều có cách bày trí và kết cấu khác nhau phù hợp với sở thích và nhu cầu của các thành viên trong gia đình. Sàn gỗ trong phòng ngủ tạo nên không gian ấm áp, thư giãn. Khung cửa sổ to mở rộng tầm nhìn thích hợp cho những chiều đông ngồi trong chốn riêng tư lặng ngắm đường phố trên tay là tách trà nóng nghi ngút khói. Mau Thiet Ke Nha Pho 6x10m 7 Tang Hien Dai 17 Mau Thiet Ke Nha Pho 6x10m 7 Tang Hien Dai 18 Mau Thiet Ke Nha Pho 6x10m 7 Tang Hien Dai 19 Sân thượng nhà phố được khai thác triệt để, thêm một địa điểm sinh hoạt giải trí của gia đình. Với khoảng ngoài trời thoáng mát cùng nội thất được bày trí, sắp đặt như một căn hộ chung cư thu nhỏ, tầng thượng trở thành không gian lý tưởng cho gia chủ tổ chức những buổi họp mặt, tiệc nướng thết đãi bạn bè và người thân. Mau Thiet Ke Nha Pho 6x10m 7 Tang Hien Dai 20 Mau Thiet Ke Nha Pho 6x10m 7 Tang Hien Dai 21 Mau Thiet Ke Nha Pho 6x10m 7 Tang Hien Dai 22 Bản vẽ thiết kế nhà phố 6x10m 7 tầng hiện đại Mau Thiet Ke Nha Pho 6x10m 7 Tang Hien Dai 23 Mau Thiet Ke Nha Pho 6x10m 7 Tang Hien Dai 24 Mau Thiet Ke Nha Pho 6x10m 7 Tang Hien Dai 25 Mau Thiet Ke Nha Pho 6x10m 7 Tang Hien Dai 26 Mau Thiet Ke Nha Pho 6x10m 7 Tang Hien Dai 27 Mau Thiet Ke Nha Pho 6x10m 7 Tang Hien Dai 28 Mau Thiet Ke Nha Pho 6x10m 7 Tang Hien Dai 29 Mẫu thiết kế nhà phố hiện đại 6x10m với quy mô 7 tầng là phương án tối ưu từ KTS dành cho gia đình nhiều thế hệ cùng chung sống trên diện tích hạn hẹp của loại hình nhà lô phố. Nếu bạn đang có nhu cầu tìm kiếm phương án thiết kế tối ưu dành riêng cho không gian sống của gia đình, mời liên hệ đến Kiến trúc Bộ Ba để nhận được sự trợ giúp trực tiếp từ KTS. Xem thêm: Mẫu thiết kế nhà ống có tầng lửng rộng 5m 1,6 tỷ có gara ô tô

Leave a Reply

Your email address will not be published. Required fields are marked *