Nội thất mẫu nhà phố 5×20 m2 kèm bản vẽ hiện đại và tinh tế

Nội thất mẫu nhà phố 5×20 m2 kèm bản vẽ bên dưới đây đã thu hút được rất nhiều sự quan tâm từ cộng đồng mạng xã hội, còn bạn, bạn thấy nó như thế nào? Hãy cùng Kiến trúc Bộ Ba tham khảo và để lại nhận xét.

Nội thất nhà phố 5×20

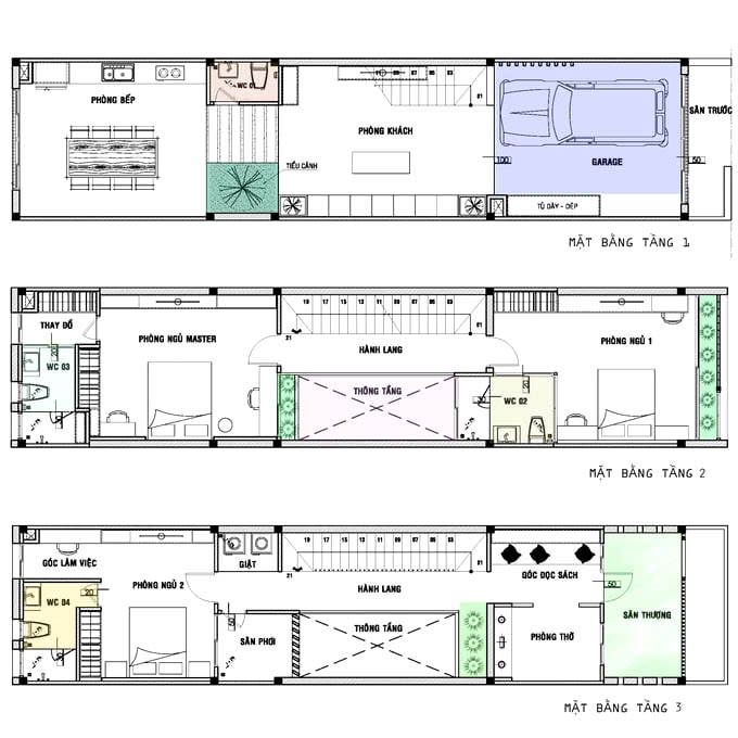
Đối với hình thức nhà lô phố – còn thường được gọi là nhà ống, phong cách thiết kế hiện đại được ưu tiên áp dụng vì tính chất tối giản tập trung vào sự linh hoạt trong bày trí sao cho tối ưu diện tích, thoát khỏi sự bí bách mà vẫn đảm bảo đầy đủ tiện nghi trong sinh hoạt. Kiến trúc hiện đại cho phép kiến trúc sư thỏa sức sáng tạo, tìm kiếm những ý tưởng mới mẻ đôi khi táo bạo để tạo nên nét riêng độc đáo và thực sự hữu ích với gia đình. Dưới đây là phương án thiết kế nhà phố có mặt bằng tầng trệt được tích hợp gara để ô tô, hình thức khá phổ biến ở những đô thị lớn nước ta, mời bạn cùng tham khảo chi tiết.
Noi That Mau Nha Lech Tang 5x20 M2 Co Ban Ve
Nội thất mẫu nhà 5×20 m2 có bản vẽ
Khu vực gara tách biệt với diện tích sinh hoạt chung bên trong nhờ thiết kế phân cấp nền. Noi That Mau Nha Lech Tang 5x20 M2 Co Ban Ve 2 Cầu thang sát tường được sử dụng để tiết kiệm diện tích, đồng thời tạo nét đẹp độc đáo cho không gian phòng khách. Khu vực tiếp nối giữa phòng khách và bếp là khoản đệm được thiết kế bổ sung tiểu cảnh xanh mát mang đến bầu không khí trong lành cùng cảm giác thư giãn cho các thành viên. Thay vì cả bộ bàn ghế cồng kềnh, kiến trúc sư chỉ bố trí một chiếc ghế sofa dài cùng chiếc bàn gỗ gọn gàng để không chiếm dụng nhiều diện tích. Bên cạnh đó một tấm thảm tinh tế tạo bố cục ấn tượng cũng là phụ kiện không thể thiếu mang đến nét đẹp sang trọng. Noi That Mau Nha Lech Tang 5x20 M2 Co Ban Ve 3 Gầm cầu thang được tận dụng bố trí kệ tivi, kệ tủ và phòng vệ sinh. Noi That Mau Nha Lech Tang 5x20 M2 Co Ban Ve 4 Khu vực bếp hạn chế bày biện vật dụng, bộ bàn ghế kiểu dáng hiện đại phá cách với chất liệu gỗ và da sang trọng cạnh bên những chậu cây nhỏ xinh, hệ thống đền thả tinh tế mang đến trải nghiệm hết sức phóng khoáng và thân thiện. Noi That Mau Nha Lech Tang 5x20 M2 Co Ban Ve 5 Hệ thống kệ tủ bếp sắc gỗ sẫm màu tương phản trên nền tường trắng sáng sang trọng. Noi That Mau Nha Lech Tang 5x20 M2 Co Ban Ve 6 Tường gạch + mảng xanh + gỗ mộc + ánh sáng là những chi tiết mang đến sự ấn tượng, góp phần nâng cao chất lượng cuộc sống cho gia đình. Noi That Mau Nha Lech Tang 5x20 M2 Co Ban Ve 7 Phòng ngủ phóng khoáng với thiết kế hiện đại đậm chất nghệ. Màu sắc nhẹ nhàng và hài hòa là yếu tố ưu tiên đế mang lại cảm giác thư giãn tối đa, bên cạnh đó những chi tiết như tranh treo tường, đèn thả, kệ tủ đóng vai trò kiến tạo nên nét thẩm mỹ riêng biệt cho căn phòng. Thiết kế phòng vệ sinh vách kính là điểm táo bạo, mang đến trải nghiệm mới lạ cho gia chủ. Noi That Mau Nha Lech Tang 5x20 M2 Co Ban Ve 8 Phòng ngủ không hề bí bách hay u uất mà rất thoáng và sáng, chỉ cần nhẹ nhàng mở 2 mảnh rèm và đón nhận sự tươi mới từ môi trường bên ngoài. Noi That Mau Nha Lech Tang 5x20 M2 Co Ban Ve 9 Một thiết kế phòng ngủ khác với không khí nhẹ nhàng và trầm lắng hơn. Noi That Mau Nha Lech Tang 5x20 M2 Co Ban Ve 10 Không gian phòng thờ và phòng đọc sách thư giãn của nội thất nhà đẹp. Noi That Mau Nha Lech Tang 5x20 M2 Co Ban Ve 11 Một góc nhỏ thú vị dành cho các thành viên trong gia đình, là nơi khơi gợi những cảm hứng bất tận.

Bản vẽ mặt bằng nhà phố 5×20:

Noi That Mau Nha Lech Tang 5x20 M2 Co Ban Ve 12 Công ty Cổ phần Thiết kế Xây dựng Bộ BaKiến trúc Bộ Ba là đơn vị tư vấn thiết kế – thi công có thâm niên tại địa bàn Thành phố Hồ Chí Minh. Chúng tôi cung cấp những giải pháp thiết thực và độc đáo, hướng đến chất lượng trong từng sản phẩm kiến trúc. Mọi chi tiết tư vấn xin mời liên hệ: Công ty Cổ phần Thiết kế Xây dựng Bộ Ba Add: Số 5 Trương Công Định – P.14 – Q.Tân Bình – Tp.HCM  Hotline: 0911.64.11.77 Website: https://kientrucboba.com/ Email: info.congtyboba@gmail.com

Leave a Reply

Your email address will not be published. Required fields are marked *