Thiết kế nhà vuông 8x9m 2 mặt tiền có gara

Mẫu thiết kế nhà vuông 8x9m nổi bật so với những công trình kiến trúc liền kề nhờ hình thức mái lệch độc đáo, màu sắc tươi sáng bên cạnh những đường nét thẳng thóm hiện đại. Kiến trúc nhà đẹp cũng được bố trí giải pháp gara cho những gia đình có sở hữu xe ô tô. Mời bạn đọc cùng tham khảo thông qua hình ảnh phối cảnh và bản vẽ chi tiết bên dưới đây. Không phải tự nhiên mà kiến trúc nhà ở hiện đại chiếm ưu thế tại những vùng đô thị hay thành phố lớn, ngoài nét đẹp tinh tế của sự tối giản thì bên cạnh đó còn là giải pháp tiết kiệm vật liệu, cân đối nguồn ngân sách, đặc biệt phù hợp với những gia đình trẻ biết nhìn nhận những nét kiến trúc mới thời hội nhập.

Mẫu thiết kế nhà vuông 8x9m 2 mặt tiền

Thiet Ke Nha Vuong 8x9m
Thiết kế nhà vuông 8x9m 2 mặt tiền
Chiều rộng lên đến 8m là một lợi thế lớn trong việc tạo dựng vẻ đẹp kiến trúc cho mặt tiền mẫu nhà phố hiện đại. Ở phương án phối cảnh này kiến trúc sư sử dụng gam màu trung tính nhẹ nhàng, dựa vào những đường nét thanh thoát để khắc họa nên một tổng thể hiện đại và thân thiện. Mái xéo kết hợp cùng những thanh dọc là điểm nhấn chủ đạo của kiến trúc nhà đẹp, chất liệu đá ốp thô mộc cũng được điểm xuyến để tạo nét sinh động và sự đa dạng cho mặt tiền nhà đẹp. Thiet Ke Nha Vuong 8x9m 2 Thiet Ke Nha Vuong 8x9m 3 Thiet Ke Nha Vuong 8x9m 4 Thiet Ke Nha Vuong 8x9m 5  
Ban Ve Thiet Ke Nha Vuong 8x9m
Bản vẽ thiết kế nhà vuông 8x9m
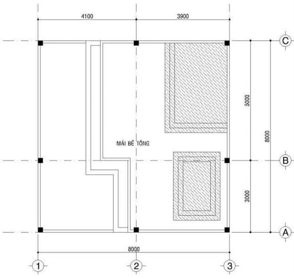
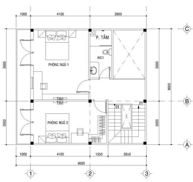
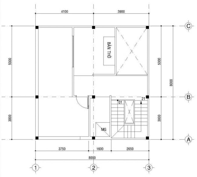
Mẫu thiết kế nhà vuông 8x9m sở hữu gara rộng 2,2 mét có thể cùng lúc phục vụ 1 xe ô tô và 2 xe gắn máy là phương án tiện lợi cho hình thức nhà phố, phần diện tích còn lại được sử dụng cho chi tiết cầu thang và phòng WC sử dụng trong sinh hoạt chung ở tầng trệt, tập trung diện tích thông thoáng cho phòng khách và bếp đồng thời không làm ảnh hưởng đến phong thủy chung của ngôi nhà. Ban Ve Thiet Ke Nha Vuong 8x9m Lau 1 Trên mặt bằng tầng lầu 2 phòng ngủ cùng phòng vệ sinh sử dụng chung, trong đó phòng ngủ master có diện tích được ưu ái hơn phòng còn lại. Diện tích giếng trời khá lớn giữ được sự thông thoáng và tươi mới cho không gian sống – một trong những yếu tố quan trọng hàng đầu mà những ngôi nhà lô phố vẫn thường thiếu. Ban Ve Thiet Ke Nha Vuong 8x9m San Thuong Phòng thờ là không gian kín duy nhất trên tầng thượng cùng với khoản sân rộng phía trước có thể sử dụng vào nhiều mục đích như sân tập thể dục, phơi quần áo hay góc thư giãn thoáng mát cho các thành viên trong gia đình. Ban Ve Thiet Ke Nha Vuong 8x9m Mai Mẫu thiết kế nhà phố hiện đại mang chút hơi hướng truyền thống phỏng theo sở thích của gia chủ là vợ chồng cô chú lớn tuổi, muốn tìm về không gian sống gần gũi với những đường nét kiến trúc quen thuộc. Công ty Cổ phần Thiết kế Xây dựng Bộ Ba (Kiến trúc Bộ Ba) là đơn vị tư vấn thiết kế – thi công chuyên nghiệp với tuổi đời hoạt động chính thức từ năm 2011 đến nay, tập hợp đội ngũ kiến trúc sư, kỹ sư và nhân công có trình độ chuyên môn cao. Kiến trúc Bộ Ba đề cao sự uy tín trong công việc nên quý khách hàng có thể hoàn toàn yên tâm trong mối  quan hệ hợp tác. Mọi chi tiết xin liên hệ: Công ty Cổ phần Thiết kế Xây dựng Bộ Ba Add: Số 5 Trương Công Định – P.14 – Q.Tân Bình – Tp.HCM Hotline: 0911.64.11.77 Website: https://kientrucboba.com/ Email: info.congtyboba@gmail.com

0 thoughts on “Thiết kế nhà vuông 8x9m 2 mặt tiền có gara

  1. Nguyễn Dũng says:

    Mẫu thiết kế nhà 8x9m 2 mặt tiền được thiết kế có vẻ ngoài mang hơi hướng hơi hoài cổ nhưng có phương án bố trí mặt bằng rất hợp lý. :like

Leave a Reply

Your email address will not be published. Required fields are marked *