Xây nhà ống 3 tầng phong cách hiện đại

Gia chủ đã yêu cầu một ngôi nhà ống có không gian sống thoáng đãng, tiện nghi với quy mô xây dựng 3 tầng theo phong cách hiện đại. Có thiết kế nhẹ nhàng, ấn tượng và kết nối với thiên nhiên.
Xây nhà ống 3 tầng phong cách hiện đại
Xây nhà ống 3 tầng phong cách hiện đại
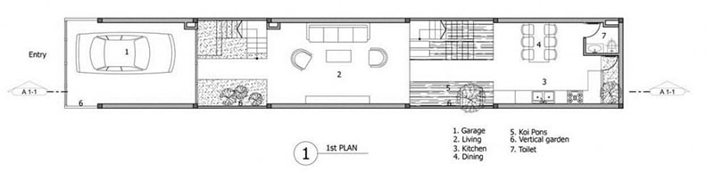
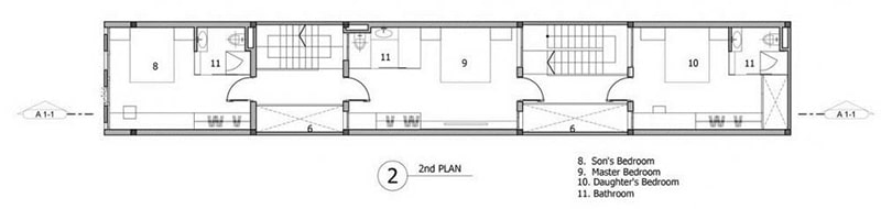
Bất kỳ ai cũng luôn muốn tạo lập cho gia đình một không gian sống thoải mái, đáp ứng được các nhu cầu sinh hoạt hàng ngày với một ngôi nhà đẹp, có thiết kế hiện đại, ấn tượng. Đây là yếu tố cần cho các mẫu nhà phố, nhà ống ngày nay. Xây nhà ống 3 tầng phong cách hiện đại Với phong cách hiện đại, quy mô xây dựng vừa đủ cho các gia đình có từ 3 – 4 thành viên, ngôi nhà ống 3 tầng đầy đủ tiện nghi, công năng sử dụng mà chúng tôi giới thiệu trong bài viết sau sẽ mang đến cho bạn trải nghiệm thú vị. Yêu cầu thiết kế từ chủ nhà và mặt tiền nổi bật Với yêu cầu thi công từ chủ nhà là muốn sở hữu một không gian sống thoáng đãng, tiện nghi cho gia đình 4 người cùng với thiết kế hiện đại, đơn giản và mang nét tự nhiên với xu hướng nội thất mộc. Để đáp ứng những yêu cầu đó, các KTS đã đưa ra một thiết kế nhà phố 3 tầng đầy ấn tượng với phong cách hiện đại. Ngôi nhà có đầy đủ công năng sử dụng với garage để xe, phòng khách, bếp, 3 phòng ngủ, vệ sinh riêng, phòng thay đồ, phòng học, phòng thờ, khu vực giặt phơi và một phòng thay đồ tiện nghi. Ngôi nhà 3 tầng được xây dựng, lồng ghép khéo léo các hình khối để đảm bảo bên trong luôn lưu thông không khí và đón được nguồn ánh sáng tự nhiên tốt nhất. Mảng tường ở tầng 2 được chừa khoảng trống để tạo hiệu ứng độ sâu cho mặt tiền, và giúp thông gió tốt hơn. Các đường nét hình khối đơn giản mang lại cảm giác không quá nổi bật, song lại tinh tế thu hút thông qua gam màu trắng chủ đạo và hệ thống đèn trang trí ấn tượng. Bố trí mặt bằng không gian sinh hoạt tại các tầng Xây nhà ống 3 tầng phong cách hiện đại Toàn bộ không gian tầng 1 được dùng làm nơi sinh hoạt chung của cả nhà với sân kết hợp garage để xe rộng rãi, phía trong là phòng khách cũng tiểu cảnh nhỏ. Phòng bếp cùng khu vực ăn uống của gia đình được đặt ở cuối nhà. Để tăng thêm sinh khí cho không gian, KTS đã thêm vào vườn tường, tiểu cảnh, hồ cá Koi và thông tầng lấy sáng. Xây nhà ống 3 tầng phong cách hiện đại Tầng 2 là nơi sinh hoạt riêng của các thành viên trong gia đình với 3 phòng ngủ rộng rãi. Mỗi không gian này đều được bố trí vệ sinh và phòng tắm riêng, để đảm bảo cho sinh hoạt hàng ngày của mọi người được thoải mái nhất. Hệ thống cửa sổ, giếng trời giúp cho các không gian này luôn thoáng đãng, đón gió và không khí một cách tốt nhất. Xây nhà ống 3 tầng phong cách hiện đại Tại tầng 3, KTS đã chọn bố trí khu vực thờ cúng ngay phía trước hướng ra sân thượng rộng rãi có bố trí cây xanh đẹp mắt. Sau cùng là một khu vực giặt phơi của gia đình và phòng thay đồ tiện dụng. Không gian nội thất kết nối với thiết kế mộc lạ mắt Toàn bộ không gian sinh hoạt của ngôi nhà 3 tầng được xây dựng theo phong cách hiện đại, song các trang trí nội thất và xu hướng nghệ thuật lại thể hiện sự độc đáo trong thiết kế với yếu tố thiên nhiên, kết hợp phong cách mộc. Toàn bộ không gian sinh hoạt chung của ngôi nhà đều có sự hiện diện của gạch nung, cây xanh và các yếu tố trang trí thiên nhiên khác. Điều nay mang lại cảm giác bắt mắt trong cái nhìn tổng thể, đồng thời tạo cảm giác ấm cúng, mộc mạc cho không gian nhà ống. Những món đồ gỗ nội thất ở phòng khách với thiết kế dung dị khiến cho toàn bộ căn nhà mang nét cá tính riêng đầy ấn tượng. Bạn sẽ vô cùng thích thú ngay khi bước chân vào ngôi nhà với tường gạch nung, trần bê tong, sàn gỗ cùng bàn ghế đơn giản… những điều này đem lại cảm giác tinh tế và thể hiện một chút yếu tố truyền thống. Nhờ vào sự phối hợp ăn ý giữa yếu tố thiên nhiên, màu sắc, vật liệu giúp cho không gian nhà được cân đối. Các điểm giao thoa giữa các khu vực sinh hoạt cũng được KTS xử lý khéo léo để tăng giá trị thẩm mỹ. Ánh sáng được đón nhận một cách tự nhiên nhất, kết hợp vườn tường, hồ cá, cửa kính tạo ra góc nhìn đẹp dù ở bất kỳ vị trí nào trong nhà. Riêng với không gian nghỉ ngơi của các thành viên trong nhà, gia chủ đã đưa ra yêu cầu xây dựng dựa trên sở thích và nhu cầu sinh hoạt riêng của từng người. Phòng ngủ của con gái nhỏ được thiết kế khá nữ tính với tone màu hồng chủ đạo, mang đến cảm giác gần gũi. Các món đồ nội thất cần thiết như tủ kệ, bàn học… giúp cho bé thoải mái sinh hoạt trong không gian riêng tư. Việc bố trí giếng trời, khoảng thông tầng phía trước giúp cho ánh sáng và không khí luôn trong lành. Với những ngôi nhà ống được xây dựng ở các khu đô thị, thì một không gian xanh là điều cần thiết dành cho gia đình. Ở đây, gia chủ đã tận dụng khoảng sân thượng rộng rãi phía trước để trồng cây xanh, trang trí thêm cho ngôi nhà. Những chậu cây nhỏ nhắn với các loài cây dễ sống, phù hợp với khí hậu là một lựa chọn mang đến tính thẩm mỹ cao. Bạn không cần tốn quá nhiều công chăm sóc mà vẫn có được một khu vườn nhỏ dễ thương dành riêng cho gia đình. Nếu bạn đang có nhu cầu thiết kế một không gian sống tiện nghi, đầy đủ công năng cho gia đình. Hãy liên hệ ngay với KTS của chúng tôi để có tư vấn chính xác nhất. Xem thêm: Mẫu nhà ống đẹp 2019 Mọi nhu cầu xin mời liên hệ: CÔNG TY CỔ PHẦN THIẾT KẾ XÂY DỰNG BỘ BA – Địa chỉ: Số 5 Trương Công Định, P.14, Q.Tân Bình, Tp.HCM – Email: info.congtyboba@gmail.com – Điện thoại: 0283.811.9077 – Hotline: 0911.64.11.77 – Website: https://kientrucboba.com

Leave a Reply

Your email address will not be published. Required fields are marked *