Ngôi biệt thự 3 tầng có thiết kế ấn tượng như một tác phẩm nghệ thuật, thoạt nhìn tưởng chừng như một bảo tàng hay công trình mang tính tầm cỡ nào đó nhưng thực chất đây là công trình biệt thự của một gia đình nhiều thế hệ cùng chung sống tại Thảo Điền – Quận 2 – Thành phố Hồ Chí Minh.
Ngôi nhà của tình yêu và sự gắn kết, điều đó không chỉ được thể hiện qua cái tên Lovers House mà qua ngôn ngữ kiến trúc ấn tượng, kiến trúc sư đã thể hiện phong cách ống của gia đình, ở đó có sự gắn kết và tôn trong môi trường.
Biệt thự 3 tầng đẹp
Ngay từ khi bắt đầu, kiến trúc sư bám sát quan điểm nhà không chỉ để che nắng, chắn mưa mà còn phản ánh được phong cách – quan điểm sống của gia đình. Theo đó, dựa trên mong muốn thắt chặt mối quan hệ giữa các thành viên trong gia đình nhiều thế hệ, kiến trúc sư sắp xếp các không gian chức năng theo hướng mang tính liên thông và kết nối.
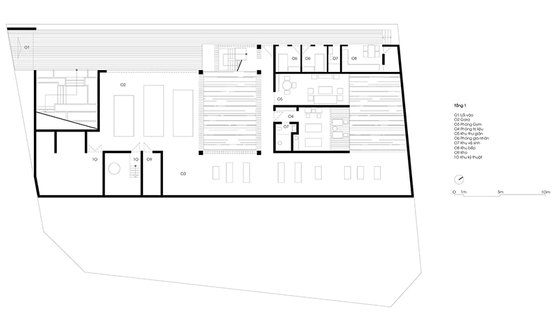
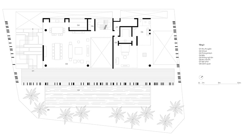
Bắt đầu với một khoảng diện tích trống lớn ở trung tâm, kiến trúc sư phân bổ những không gian chức năng bao quanh gồm gara, phòng khách, phòng ngủ, phòng tập thể dục, … tạo sự liên thông và tận dụng điều đó để bổ trợ thông gió một cách tự nhiên và hiệu quả.
Yếu tố cây xanh, mặt nước, ánh sáng tươi cũng được tận dụng triệt để để tạo vẻ ôn hòa cho công trình kiến trúc, đảm bảo một môi trường sống cân bằng giữa tự nhiên và nhân tạo.
Ô văng ở mặt tiền ngôi nhà cho phép tiếp nhận nguồn sáng bình minh tươi mới một cách triệt để nhưng cũng đồng thời ngăn chặn ánh nắng gay gắt của buổi ban trưa. Hệ lam dọc kích cỡ lớn bố trí xuyên suốt chiều rộng của mẫu biệt thự cho phép hiệu ứng bóng đổ thay đổi theo từng thời điểm trong ngày, tạo nên sự “sống” cho không gian.
Mặt hồ trong vắt và tĩnh lặng như mặt gương làm nền nêu bật vẻ đẹp công trình và những mảng xanh tươi tốt xung quanh.
Không thiếu những góc yên ả bên trong công trình có thể mang đến những xúc cảm dạt dào cho các thành viên.
Không gian sống cởi mở và tôn trọng cảnh sắc thiên nhiên cho phép các thành viên cảm nhận bầu không khí thư giãn của một không gian nghỉ dưỡng, đầy đủ tiện nghi với khoảng diện tích sinh hoạt rộng thoáng nhưng cũng rất kín đáo và riêng tư.
Bằng cách xếp chồng từng lớp, từng khối theo một phương thức hợp lý, kiến trúc sư tạo nên công trình kiến trúc biệt thự 3 tầng độc đáo nói lên nguyện vọng và phong cách sống của gia đình.
Xem thêm:Phong cách thiết kế biệt thự kiểu Pháp có gì – sức hút đến từ đâu?