Mẫu nhà phố 80m2 trong hẻm nhỏ Quận 1 Sài Gòn vẫn ngập sắc xanh

Mẫu nhà phố 80m2 tọa lạc tại một con hẻm nhỏ Quận 1 – Sài Gòn được thiết kế thô mộc tràn ngập nắng, gió và mảng xanh xuyên suốt không gian từ ngoại đến nội thất.
Mau Nha Pho 80m2 Trong Hem Nho
Mẫu nhà phố 80m2 trong hẻm nhỏ Quận 1 – Sài Gòn
NDC House nằm trong một con hẻm nhỏ tại trung tâm quận 1, khu vực vốn tấc đất tấc vàng, không gian luôn được tận dụng triệt để. Mặc dù vậy , gia chủ vẫn dành rất nhiều những khoảng trống hợp lý cho cây xanh, cho gió và ánh sáng tự nhiên.

Mẫu nhà phố 5 tầng có lửng trên mảnh đất 80m2 trong hẻm nhỏ

Mau Nha Pho 80m2 Trong Hem Nho 2 Mau Nha Pho 80m2 Trong Hem Nho 3 Mau Nha Pho 80m2 Trong Hem Nho 4 Mau Nha Pho 80m2 Trong Hem Nho 5 Mau Nha Pho 80m2 Trong Hem Nho 6 Ngôi nhà xây trên mảnh đất có lối vào hẹp với một mảnh sân nhỏ nhưng thật giá trị và phần nở hậu vuông vức dùng để xây dựng ngôi nhà. Khoảng lùi quy hoạch phía sau sử dụng làm một sân vườn nhỏ đơn giản phù hợp với gia đình bận rộn có ít quỹ thời gian chăm sóc cây. Tầng trệt là nơi tiếp khách, bếp và bàn ăn lớn. Giải pháp không gian mở bằng ô cửa lớn kết nối giữa sân trước, sân sau, không gian tiếp khách và khoảng thông tầng vị trí đặt bàn ăn tạo cảm giá rộng rãi và thoáng đãng. Đồng thời, ánh sáng tự nhiên được khai thác tối đa. Tầng lửng là không gian sinh hoạt gia đình thường xuyên, nơi cả nhà cùng chơi đàn piano. Tấm phản gỗ cũng nơi đọc sách và thư giãn. Lầu 1 dành cho phòng ngủ master đầy đủ tiện nghi như phòng tắm, phòng quần áo lớn và 1 góc làm việc nhỏ. Lầu 2 gồm phòng thờ và 2 phòng ngủ cho 2 cô con gái nhỏ. Mặt tiền nhà sử dụng mô tuýp gạch xếp lỗ quen thuộc kết hơp vói những ô trống và vách kính lùa cho phép ngôi nhà vừa có không gian riêng tư cần thiết vừa có được những góc nhìn được chọn lọc. Tuy nhiên giải pháp xây dựng mặt tiền này là một thách thức không hề nhỏ với đội thi công. Gần như toàn bộ đồ nội thất trong nhà làm bằng gỗ từ cây trò chỉ xẻ ra và sấy khô, phần gỗ lớn được chọn làm bàn ăn, tấm phản gỗ ngồi đọc sách ở tầng lững và giường ngủ lớn phòng master. Bề mặt gỗ chỉ cần lau dầu lanh nhẹ để bảo vệ gỗ vừa giữ được màu sắc và vân gỗ tự nhiên. Chủ nhà vốn có nhiều tình cảm với vật liệu thô mộc như gạch nung, bê tông trần và đá mài. Những loại vật liệu tạo cảm giác ấm cúng, thân thiện và mát mẻ. Ngôi nhà xây bằng vật liệu thô mộc không tô trát đòi hỏi một sự cẩn thận và khéo léo trong từng chi tiết, và cả sự kiên nhẫn của chủ nhà. NDC House là một lựa chọn cho những ai yêu thích sự mộc mạc, giản dị và gần gũi. Mau Nha Pho 80m2 Trong Hem Nho 7 Mau Nha Pho 80m2 Trong Hem Nho 8 Mau Nha Pho 80m2 Trong Hem Nho 9 Mau Nha Pho 80m2 Trong Hem Nho 10 Mau Nha Pho 80m2 Trong Hem Nho 11 Mau Nha Pho 80m2 Trong Hem Nho 12 Mau Nha Pho 80m2 Trong Hem Nho 13 Mau Nha Pho 80m2 Trong Hem Nho 14 Mau Nha Pho 80m2 Trong Hem Nho 15 Mau Nha Pho 80m2 Trong Hem Nho 16 Mau Nha Pho 80m2 Trong Hem Nho 17 Mau Nha Pho 80m2 Trong Hem Nho 18 Mau Nha Pho 80m2 Trong Hem Nho 19 Mau Nha Pho 80m2 Trong Hem Nho 20 Mau Nha Pho 80m2 Trong Hem Nho 21

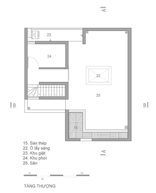
Bản vẽ mặt bằng mẫu nhà phố 80m2 trong hẻm nhỏ

Mau Nha Pho 80m2 Trong Hem Nho 22

Mau Nha Pho 80m2 Trong Hem Nho 23 Mau Nha Pho 80m2 Trong Hem Nho 24 Mau Nha Pho 80m2 Trong Hem Nho 25 Mau Nha Pho 80m2 Trong Hem Nho 26 Mau Nha Pho 80m2 Trong Hem Nho 27 Nếu NDC House trên đây là mẫu nhà anh chị đang tìm kiếm, hãy để Kiến trúc Bộ Ba giúp anh chị hiện thực hóa bằng cách liên hệ trực tiếp đến kiến trúc sư theo thông tin được cung cấp trên website. Xem thêm: Mẫu thiết kế nhà ống 45m2 mặt tiền rộng 3m thô mộc giữa Sài Gòn hoa lệ

Nguồn: Kiến trúc nhà ngói

Leave a Reply

Your email address will not be published. Required fields are marked *