Thiết kế nhà ống trên sườn dốc vùng cao nguyên ngập tràn đồi núi

Thiết kế nhà ống trên sườn dốc đang được nhiều gia chủ ở các tỉnh vùng cao nguyên và miền núi quan tâm. Với địa hình không bằng phẳng và có độ dốc từ thoải thoải đến thằng đứng, việc thiết kế đòi hỏi phải tính toán kỹ lưỡng và cân nhắc đến việc tận dụng triệt để mọi khoảng trống. Kiến trúc Bộ Ba xin giới thiệu mẫu thiết kế nhà ống trên sườn dốc.

Thiết kế nhà ống trên sườn dốc

Đây là một trong những dự án nhà trên sườn dốc ở Indonesia, được đội ngũ chuyên gia thiết kế và thi công giàu kinh nghiệm thực hiện, gần đây đã được chia sẻ trên các cộng đồng mạng.
Thiet Ke Nha Ong Tren Suon Doc
Thiết kế nhà ống trên sườn dốc vùng cao nguyên ngập tràn đồi núi
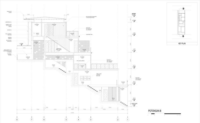
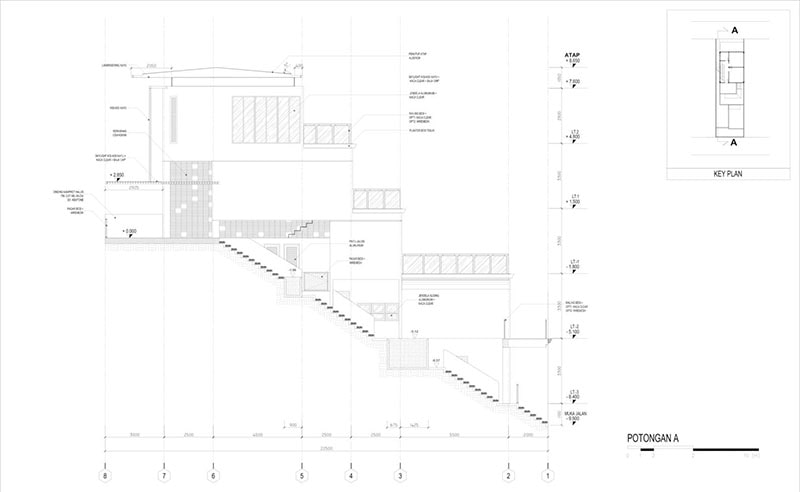
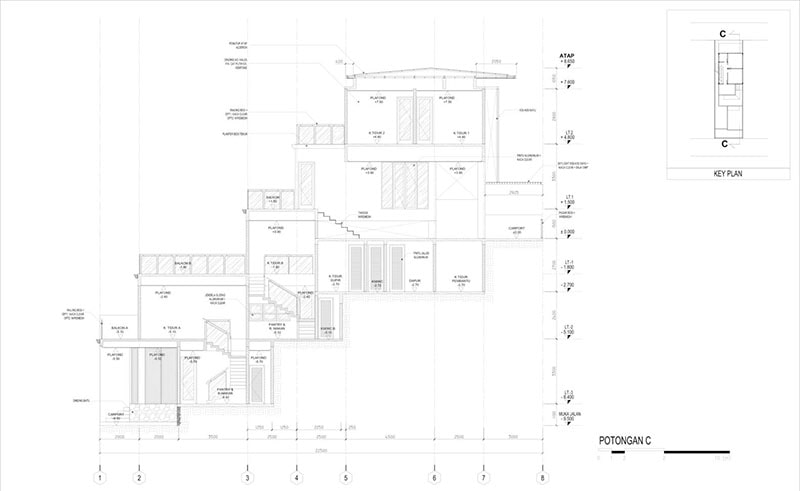
Trên một vùng đất hẹp 6,5 x 25 mét, 3 công trình của ngôi nhà được xây dựng theo từng bậc. Các khối hộp được sắp xếp chồng lên nhau như một mô hình đồ chơi của trẻ nhỏ khi nhìn từ trên xuống, kéo dài từ thấp nhất đến điểm cao nhất của vùng đất. Toàn bộ kết cấu của ngôi nhà ống gồm 2 gác lửng ở chân dốc nhằm giảm sự chịu lực đến từ các khối hộp phía trên cũng như cân nhắc đến yếu tố độ dốc. Phần giữa và đỉnh sườn là một ngôi nhà 2 tầng. Khoảng cách từ lộ giới đến khuôn viên nhà cũng như khoảng cách giữa các khối hộp đều được phân chia hợp lý nhằm phân tán lực giữa các khu, đồng thời không phải chịu sức ép từ trọng lượng trên và dưới. Các bậc thang trở thành điểm liên kết và phân tán lực hiệu quả cho các khối hộp. Dốc nghiêng 300 tạo ra sự chênh lệch hơn 10 mét giữa các mặt tiền của sườn dốc nằm giữa hai con đường. Đây là hiện trạng thực tế khiến các chuyên gia xem như chủ đề chính trong việc cân nhắc về khối lượng công trình nên thực hiện và tương tác với nhau như thế nào. Thiet Ke Nha Ong Tren Suon Doc 2 Bằng cách áp dụng chiến lược bậc thang nhà ống, khối lượng xây dựng được bố trí theo cách mà mỗi mái nhà phía dưới trở thành ban công cho tầng trên. Phần nhà sẽ được đẩy lùi về sau để được sườn dốc gia cố cũng như tránh nắng hiệu quả. Mỗi tầng đều có ban công riêng. Thiet Ke Nha Ong Tren Suon Doc 3 Chủ sở hữu muốn một ngôi nhà nghỉ mát phù hợp không chỉ cho việc sử dụng cá nhân mà còn phục vụ như là một nhà nghỉ phục vụ vào ban ngày. bằng cách sử dụng không gian và con đường ở chân dốc như lối vào. Bên cạnh đó, việc phân vùng sinh hoạt giữa chung và riêng, giữa phần sinh hoạt gia đình và khu cho thuê trở thành yêu cầu bắt buộc. Thiet Ke Nha Ong Tren Suon Doc 4 Thiet Ke Nha Ong Tren Suon Doc 5 Được xây dựng trong khu dân cư được bao quanh bởi các dãy nhà san sát đông đúc, dân cư đông đúc. Vị trí nhà ống cũng đang đứng trên vùng đất sườn dốc sầm uất giữa các con hẻm chật chội.  Điều đó sẽ trở nên thú vị nếu chất lượng không gian được sử dụng tạo ra sự di chuyển lưu thông ở bên trong từ đầu này sang đầu kia để ngắm cảnh. Thông thường một công trình nhà phố với diện tích eo hẹp đều được các KTS tận dụng tối đa mọi tấc đất. Với nhà ống trên sườn dốc này thì việc đưa công trình ra khoảng không phía trước lại được khai thác triệt để. Từ đó, nhà ống có thêm nhiều không gian sống vừa đủ cho gia đình vừa có thể cho thuê tạo nguồn thu nhập hàng tháng. Thiet Ke Nha Ong Tren Suon Doc 6 Một sự tương tác độc đáo đã xảy ra trong suốt quá trình di chuyển vào các khu vực của ngôi nhà ống. Tận dụng khoảng không ngoài trời như đã nêu trên sẽ giúp những ngôi nhà ống trên sườn dốc mở rộng diện tích đáng kể. Bên cạnh đó, những mảng xanh kết hợp với giếng trời được lồng ghép vào khuôn viên nhà sẽ đem đến không gian thông thoáng nhất định trong khu dân cư tập thể, làm gia tăng tính phong phú trong việc trải nghiệm không gian bên trong khi hòa điệu với khí trời. Thiet Ke Nha Ong Tren Suon Doc 7 Nội thất nhà ống đơn giản nhưng đầy đủ tiện nghi ược bố trí và sắp đặt gọn gang, tươm tất, gia tăng sự thông thoáng và rộng rãi của không gian sống. Khu vực sinh hoạt chung tuy nhỏ gọn nhưng vừa vặn và ấm áp cho những buổi sum họp gia đình. Thiet Ke Nha Ong Tren Suon Doc 8 Thiet Ke Nha Ong Tren Suon Doc 9 Những mái hiên bên dưới trở thành dãy ban công thơ mộng cho tầng trên trở thành một nét độc đáo của nhà ống trên sườn dốc trong việc sử dụng không gian đầy linh hoạt và thông minh của các KTS và gia chủ. Bản vẽ chi tiết nhà ống trên sườn dốc: Thiet Ke Nha Ong Tren Suon Doc 10 Thiet Ke Nha Ong Tren Suon Doc 11 Thiet Ke Nha Ong Tren Suon Doc 12 Thiet Ke Nha Ong Tren Suon Doc 13 Thiet Ke Nha Ong Tren Suon Doc 14 Cùng Kiến trúc Bộ Ba tạo tác những đường nét sinh động cho cuộc sống của bạn. Mọi chi tiết cần được tư vấn về thiết kế và xây dựng, xin liên hệ: Công ty Cổ phần Thiết kế Xây dựng Bộ Ba Địa chỉ: Số 5 Trương Công Định – P.14 – Q.Tân Bình – Tp.HCM Hotline: 0911.64.11.77 Website: https://kientrucboba.com/ Email: info.congtyboba@gmail.com

Xem thêm:

Leave a Reply

Your email address will not be published. Required fields are marked *